Ingatlan Televízió
Ingatlan Televízió
további hirdetések
adatlap bezárása

Iváncsa 
 

Hivatkozási szám: 5854648
Ingatlan adatai
Irányár: 34 500 000 Ft
Típus: ház
Kategória: eladó
Alapterület: 72 m2
Fűtés: gáz (konvektor)
Állapota: felújított
Szobák száma: 2+1
Építés éve: 1950
Szintek száma: 1
Részletes leírás
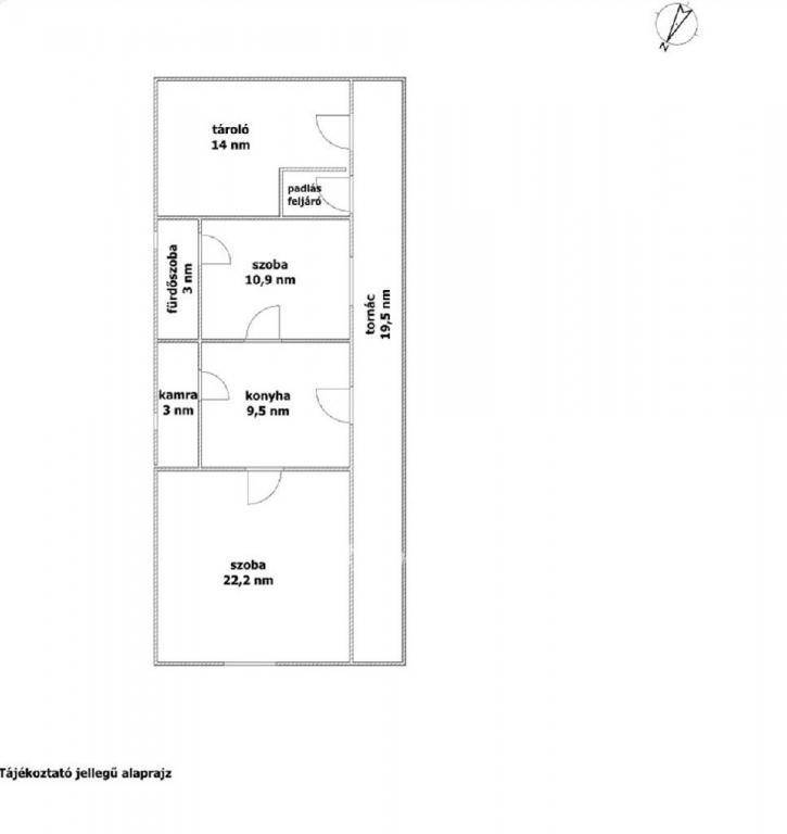
Fejér megye, Iváncsa 72 nm-es családi ház eladó. A tehermentes ingatlan a vasútállomástól 2 km-re, egy 902 nm-es bekerített telken helyezkedik el békés, csendes övezetben. Az összkomfortos házban nappali, szoba, félszoba, konyha, kamra, fürdőszoba található, valamint tartozik hozzá tornác és két különálló melléképület. A vegyes falazatú ingatlanban cserélték a nyílászárókat műanyagra, valamint a villanyvezetékeket is. A fűtésről gázkonvektorok gondoskodnak. A ház riasztóval felszerelt. Az ingatlan gyorsan birtokba vehető és költözhető. Teljes körű ügyintézésben segítjük ügyfeleinket díjtalanul: Falusi CSOK, CSOK igénylése, kedvezményes hitel mobil bankári szolgáltatással, adásvétel teljes lebonyolításával. Bővebb információkért, kérem keressen bizalommal, akár hétvégén is.
További adatok
Telekterület: 902 m2
Kert mérete: -
Erkély mérete: -
Felszereltség: -
Parkolás: lakáshoz van kültéri parkoló
Kilátás: -
Egyéb extrák:  
Hirdető adatai
Hirdető neve: otpip.hu - Székesfehérvár Palotai út 8 - OTP Ingatlanpont Iroda
Kapcsolattartó: Darnai Henrietta
Hirdető telefonszáma: +36-20-487-4399
Honlap: -
 
Üzenetet küldhet a hirdetőnek, árajánlatot tehet az ingatlanra:
Az Ön neve:
Az Ön e-mail címe:
Üzenet: