Ingatlan Televízió
Ingatlan Televízió
további hirdetések
adatlap bezárása

Mezőkeresztes 
Dózsa György utca 

Hivatkozási szám: 5854040
Ingatlan adatai
Irányár: 32 000 000 Ft
Típus: ház
Kategória: eladó
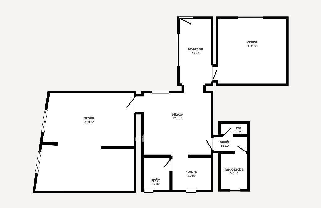
Alapterület: 96 m2
Fűtés: gáz (konvektor)
Állapota: felújított
Szobák száma: 3
Építés éve: 1970
Szintek száma: 1
Részletes leírás
Eladóvá vált Borsod - Abaúj - Zemplén Vármegye egyik barátságos kisvárosában, Mezőkeresztesen egy belterületi ingatlan, mely a település központi részén helyezkedik el. Az M3 - as autópályától 5 percre, valamint orvosi rendelő, gyógyszertár, óvoda, bolt és piac 200 méteren belül megtalálhatók.
Az elhelyezkedéséből adódóan más célokra is alkalmas lehet.
Az ingatlanon található egy 96 m2 nagyságú jó állapotú összkomfortos családi ház. A jó elosztású napfényes, tágas szobák, és praktikus konyha teszi kényelmessé a mindennapokat. Az otthon melegét gázkazán, vagy vegyes tüzelésű kazánnal is lehet biztosítani. A melegvizet villanybojler biztosítja. A nyílászárók korszerű hőszigetelt műanyagok. A tető jó állapotú cserép héjazattal.
A házban 3 szoba, konyha, fürdőszoba és WC található. Pincehelység van.
A telek szabálytalan alakú a hátsó része egy másik utcára nyílik. A kertben gyümölcsfák találhatók, de bőven van lehetőség a hobbi kertészkedéshez is. A környék nagyon nyugodt biztonságos. Ideális kisgyermekes családoknak is.
A gépkocsival be lehet állni az udvarra.
Befektetésként megvásárolva is remek választás. Felkeltette az érdeklődését? Jöjjön el és győződjön meg személyesen is a leírtakról! Ingatlanirodánk ügyvédi háttérrel, CSOK, babaváró hitel, valamint kamatkedvezményes hitel ügyintézésével támogatja ügyfelei ingatlanvásárlását! Referenciszám: M316903

Referencia szám: M316903
További adatok
Telekterület: 2 096 m2
Kert mérete: -
Erkély mérete: -
Felszereltség: -
Parkolás: lakáshoz van kültéri parkoló
Kilátás: -
Egyéb extrák:  
Hirdető adatai
Hirdető neve: otpip.hu - Miskolc Szemere Bertalan utca 20 - OTP Ingatlanpont Iroda
Kapcsolattartó: Piskóti Tibor Lajos
Hirdető telefonszáma: +36-70-322-2946
Honlap: -
 
Üzenetet küldhet a hirdetőnek, árajánlatot tehet az ingatlanra:
Az Ön neve:
Az Ön e-mail címe:
Üzenet: