Ingatlan Televízió
Ingatlan Televízió
további hirdetések
adatlap bezárása

Celldömölk 
 

Hivatkozási szám: 5853816
Ingatlan adatai
Irányár: 940 000 000 Ft
Típus: kereskedelmi/ipari ingatlan
Kategória: eladó
Alapterület: 5 278 m2
Fűtés: -
Állapota: -
Szobák száma: -
Építés éve: -
Szintek száma: -
Részletes leírás
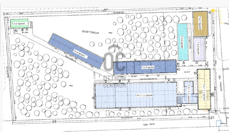
Kiváló infrastruktúrával rendelkező 19.721 m2-es telken található iroda-raktárbázis eladó! A telek közforgalmi úttal teljesen körbejárható, a déli telekhatár mellett vasútvonal húzódik. A telken 8 darab önálló, különféle méretű felépítmény található, melyeket belső úthálózat köt össze.

Az épületek közüzemi vízzel, elektromos árammal, vezetékes gázzal, szennyvízcsatorna hálózattal és kiépített tűzivíz rendszerrel vannak ellátva.
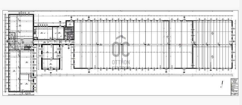
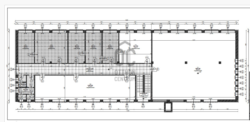
Összesen 4.859 m2 területű raktár és 1014 m2 irodaterületet áll a területen rendelkezésre.
Az épület padlóterhelhetősége 5 tonna/m2, a belmagasság pedig 5 méter.

Jellemzők
Kiváló belföldi és külföldi közlekedési kapcsolatok
Zárt terület
Térfigyelő kamerarendszer
Parkosított környezet
Személygépkocsi parkolók

Műszaki jellemzők
Padlóterhelhetőség: 5 t/m2
Belmagasság: 5 m
Közüzemi fogyasztási almérők
19721 m2 telekterület
8 felépítmény a területen
Teljes felépítmény méret: 5278 m2

Lokáció
834-es, 84-es, E66-os főút
Budapest: 150 km
Ausztria: 60 km

Telekterület: 19721 m2
Épületek össz területe: 5278 m2
Ár: 940 millió Ft + Áfa
További adatok
Telekterület: -
Kert mérete: -
Erkély mérete: -
Felszereltség: -
Parkolás: -
Kilátás: -
Egyéb extrák:  
Hirdető adatai
Hirdető neve: Otthon Centrum
Kapcsolattartó: Demeter András
Hirdető telefonszáma: +36 70 716 9611
Honlap: -
 
Üzenetet küldhet a hirdetőnek, árajánlatot tehet az ingatlanra:
Az Ön neve:
Az Ön e-mail címe:
Üzenet: