Ingatlan Televízió
Ingatlan Televízió
további hirdetések
adatlap bezárása

Miskolc 
 

Hivatkozási szám: 5853673
Ingatlan adatai
Irányár: 69 900 000 Ft
Típus: lakás (újépítésű)
Kategória: eladó
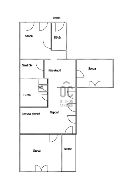
Alapterület: 83 m2
Fűtés: gáz (cirko)
Állapota: új
Szobák száma: 3
Építés éve: 2024
Szintek száma: -
Részletes leírás
Fedezd fel Miskolc szívében ezt a lenyűgöző, új építésű lakást, amely ideális választás lehet akár a családod, akár a vállalkozásod számára! Ez a prémium kivitelezésű, modern belvárosi lakás 83 négyzetméteren terül el, és három tágas szobával rendelkezik, amelyek tökéletesen alkalmasak irodai munkára vagy ügyféltalálkozók lebonyolítására. A lakás egyedi tervezésének köszönhetően a terek világosak és barátságosak, a kiváló állapot pedig garantálja, hogy azonnal birtokba veheted. A fürdőszoba egyedi megoldásokkal van felszerelve, így biztos lehetsz benne, hogy a mindennapi kényelmet maximálisan szolgálja. A 5 négyzetméteres terasz pedig nemcsak a pihenésre, hanem a kreatív ötletek megvalósítására is remek lehetőséget biztosít. A lakás fűtése gáz (cirko), ami hatékony és gazdaságos megoldást jelent a hideg hónapokban. A környék előnyeit nem lehet eléggé hangsúlyozni. Miskolc belvárosában elhelyezkedve a lakás kitűnő közlekedési lehetőségekkel rendelkezik, így akár autóval, akár tömegközlekedéssel könnyedén megközelítheted a város többi részét. A közeli busz megálló, csupán pár perc sétára található, így a napi ingázás sosem volt még ennyire egyszerű. A városrész biztonságos és csendes, ideális környezetet teremt a munkához és a pihenéshez egyaránt. A közelben számos étterem, kávézó és bolt várja a látogatókat, így a mindennapi szükségletek könnyen kielégíthetők. A zöld területek közelsége pedig lehetőséget ad a szabadidős programokhoz, legyen szó akár sétáról, futásról vagy kerékpározásról. Ez a kertkapcsolatos lakás nemcsak egy új otthont, hanem egy életstílust is kínál, amely a modern városi élet minden előnyét magában foglalja. Ha szeretnéd megtekinteni ezt a különleges ingatlant, vagy bármilyen kérdésed van, ne habozz kapcsolatba lépni velem! Bizalommal kereshetsz, hiszen célom, hogy megtaláljuk a számodra legmegfelelőbb ingatlant. Ne maradj le erről a fantasztikus lehetőségről, hiszen az ilyen ajánlatok gyorsan elkelnek! Az ingatlan az OC \\\"felező\\\" portfoliójába tartozik!! További információ az OC weboldalán található!

Ez az ingatlan a \\\"Felező csomag\\\" megbízási portfólióhoz tartozik. Részletek az Otthon Centrum weboldalán.
További adatok
Telekterület: -
Kert mérete: -
Erkély mérete: 5 m2
Felszereltség: -
Parkolás: -
Kilátás: kertre néző
Egyéb extrák:  
Hirdető adatai
Hirdető neve: Otthon Centrum
Kapcsolattartó: Kocsis György
Hirdető telefonszáma: +36 70 461 9151
Honlap: -
 
Üzenetet küldhet a hirdetőnek, árajánlatot tehet az ingatlanra:
Az Ön neve:
Az Ön e-mail címe:
Üzenet: