Ingatlan Televízió
Ingatlan Televízió
további hirdetések
adatlap bezárása

Szűr 
 

Hivatkozási szám: 5852862
Ingatlan adatai
Irányár: 12 000 000 Ft
Típus: ház
Kategória: eladó
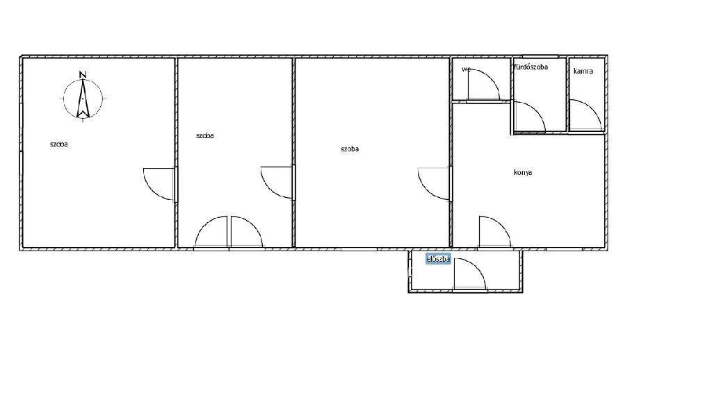
Alapterület: 68 m2
Fűtés: gáz (konvektor)
Állapota: felújított
Szobák száma: 3
Építés éve: 1970
Szintek száma: 1
Részletes leírás
Eladó családi ház Szűrön! Baranya megye egyik bájos, dombos falujában, Szűrön kínálok eladásra egy 68 nm-es, háromszobás családi házat, amely 353 nm-es telken fekszik. Ez az ingatlan remek lehetőség mindazoknak, akik a nyugodt vidéki életre vágynak, de nem szeretnének lemondani a jó infrastruktúráról sem. Főbb jellemzők. Vegyes falazatú, cserépfedésű, gázkonvektor és kályha fűtéssel rendelkezik. Elrendezése, három tágas egymásból nyíló szoba, konyha, fürdőszoba és külön wc. A telekhez garázs és külön tároló is tartozik. Az új műanyag ablakok már meg vannak vásárolva, ami benne van a vételárban. Igy a felújítás költsége ezzel csökken. A 353 nm-es telek elegendő helyet biztosít kertnek, pihenő saroknak, játszótérnek, akárcsak hobbiudvarnak. Környezet és infrastruktúrája, Szűr Baranya megyében, a Geresdi-dombság lankáin fekszik, gyönyörű vidéki környezetben. Az M60-as autópálya könnyen elérhető Véméndnél vagy Mohácsnál, így Pécs és más nagyvárosok is jól megközelíthetők. A faluban buszközlekedés rendszeresen működik. Szűr könnyen elérhető Mohácsról és Pécsváradról is. Szűr községében működik falugondnoki rendszer, amely segíti a helyi közösséget. Iskola és óvoda Himesházán található, gyerekjárattal szervezetten. Elérhető minden közmű a csatornázás is megoldott, és van szélessávú internet, így a modern igények sem maradnak kielégítetlenek. Az ingatlan ideális választás lehet családoknak, idősebbeknek vagy azoknak, akik vidéki, kényelmes életre vágynak. A telek viszonylag visszafogott mérete miatt a gondozása nem jelent jelentős terhet. . A ház falusi CSOK-ra alkalmas. További kérdéseivel és személyes megtekintésért keressen bizalommal! M317454

Referencia szám: M317454
További adatok
Telekterület: 353 m2
Kert mérete: -
Erkély mérete: -
Felszereltség: -
Parkolás: lakáshoz van kültéri parkoló
Kilátás: -
Egyéb extrák:  
Hirdető adatai
Hirdető neve: otpip.hu - Pécs Király utca 75 - OTP Ingatlanpont Iroda
Kapcsolattartó: Szabó Ágnes
Hirdető telefonszáma: +36205097862
Honlap: -
 
Üzenetet küldhet a hirdetőnek, árajánlatot tehet az ingatlanra:
Az Ön neve:
Az Ön e-mail címe:
Üzenet: