Ingatlan Televízió
Ingatlan Televízió
további hirdetések
adatlap bezárása

Nyírgyulaj 
 

Hivatkozási szám: 5849166
Ingatlan adatai
Irányár: 53 000 000 Ft
Típus: ház
Kategória: eladó
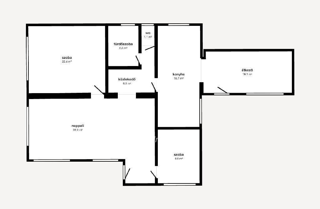
Alapterület: 116 m2
Fűtés: gáz (cirko)
Állapota: felújított
Szobák száma: 2
Építés éve: 1980
Szintek száma: 1
Részletes leírás
Eladó családi ház Nyírgyulaj központjában - hangulatos, tágas otthon nagy család számára.

Nyírgyulaj szívében, rendezett környezetben eladó egy 1980-ban épült, szilikát és tufa falazatú, szigetelt családi ház, amelyet tulajdonosai folyamatosan karbantartottak, így megőrizte otthonos, gondozott állapotát.

A 116 nm alapterületű ház elrendezése kényelmes és jól átgondolt. A tágas konyha-étkező ideális nagy család számára.
A nagy nappali pedig akár egy újabb szoba kialakítására is lehetőséget ad. Ezen felül két külön bejáratú szoba, fürdőszoba és külön WC található benne.

A ház fűtése gázcirkóval, vegyes tüzelésű kazánnal és hangulatos cserépkályhával is megoldható, radiátoros hőleadókkal. A műanyag nyílászárók reluxával felszereltek, a ház szigetelt, így a rezsi kedvező.

A ház folytatásában egy nagy méretű garázs található melyből egy tágas kamra nyílik, akár háztartási tárolónak is kiváló. Az udvaron külön 20 nm-es lemezépület szolgál kerti szerszámok tárolására. Az 1526 nm-es telek gondozott, különleges gyümölcsfákkal beültetett, fúrott kút áll rendelkezésre az öntözéshez.
A hangulatos terasz a ház egyik legkedveltebb pontja, ahol kellemesen tölthetők a nyári esték, ideális kerti programokhoz és családi összejövetelekhez.

Nyírgyulaj településen a központi elhelyezkedés miatt minden fontos intézmény és szolgáltatás gyalogosan is elérhető, a környező települések - Nyírbátor, Máriapócs, Nyíregyháza - pedig könnyen megközelíthetők.

Ez az ingatlan ideális választás mindazok számára, akik tágas, barátságos családi otthont keresnek nyugodt, mégis központi helyen, rendezett környezetben.

OTP Banki hátterünknek köszönhetően finanszírozási igényekben (pl. Otthon Start Hitelprogram, Babaváró, Falusi CSOK, CSOK Plusz, Lakáshitel, Személyi kölcsön stb.), illetve biztosítások tekintetében is díjmentesen, soron kívüli ügyintézéssel segítem ügyfeleim! Referenciaszám: M316023
További adatok
Telekterület: 1 526 m2
Kert mérete: -
Erkély mérete: -
Felszereltség: -
Parkolás: lakáshoz van kültéri parkoló
Kilátás: -
Egyéb extrák:  
Hirdető adatai
Hirdető neve: otpip.hu - Nyíregyháza Bocskai utca 18-20 - OTP Ingatlanpont Iroda
Kapcsolattartó: Lipcseiné Kozák Judit
Hirdető telefonszáma: +36209406654
Honlap: -
 
Üzenetet küldhet a hirdetőnek, árajánlatot tehet az ingatlanra:
Az Ön neve:
Az Ön e-mail címe:
Üzenet: