Ingatlan Televízió
Ingatlan Televízió
további hirdetések
adatlap bezárása

Győr 
 

Hivatkozási szám: 5848418
Ingatlan adatai
Irányár: 61 190 000 Ft
Típus: lakás (újépítésű)
Kategória: eladó
Alapterület: 44 m2
Fűtés: házközponti egyedi méréssel
Állapota: új
Szobák száma: 2
Építés éve: 2025
Szintek száma: -
Részletes leírás
Ha valami igazán értékeset szeretnél, vagy csak egyszerűen a város igazi központjában szeretnél lakni, ez a hirdetés neked szól!

Győrben, a szó szoros értelmében a belvárosban, polgári környezetben, csak neked épül, leendő ingatlanod.

- Klasszikus polgári társasház
- Teljeskörű átépítés és műszaki felújítás
- Örökségvédelmi előírásoknak megfelelő milyenségben és minőségben
- Kielégítve minden modern energetikai és esztétikai igényt

Az emeltszintű fűtéskész átadás tervezett időpontja : 2025. december

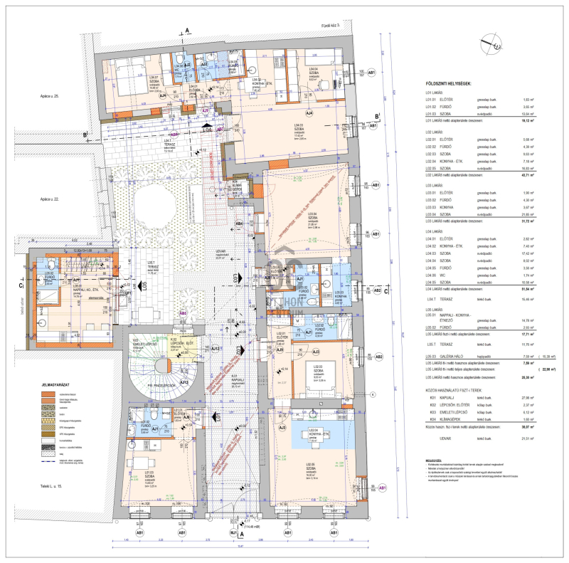
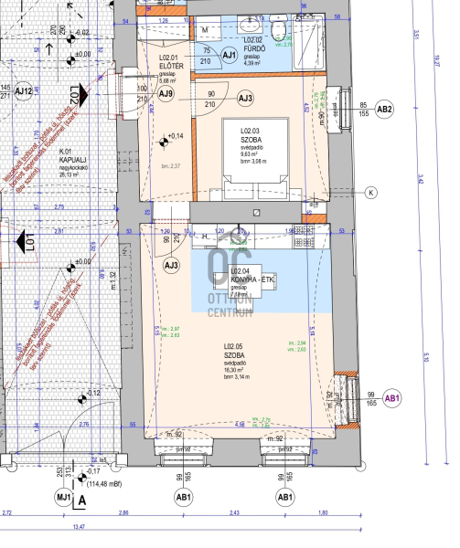
* Az ingatlan a társasház földszintjén helyezkedik el
* Hasznos alapterülete : 43,71nm
* Elrendezése nappali - konyha + hálószoba + fürdő - wc
* Fűtése házközponti gázkazán, egyedi méréssel
* A klíma előkészítés a vételár részét képezi
* A nyílászárók egyedi gyártású Módos Fa ablakok

A lakáshoz kötelező megvásárolni 1 db tárlók, az alábbiak közül :

P064,57nm2 056 500,-
P095,62nm2 529 000,-
P106,91nm 3 109 500,-

A kulcsrakész befejezést, igény esetén vállalja a kivitelező.

A részletekkel, kérdéseiddel kapcsolatban keress bizalommal!

Hitelre van szüksége??
Az Otthon Centrum az ország egyik legnagyobb és legmegbízhatóbb hitelközvetítőjeként, teljes körű és díjmentes hitelügyintézéssel, biztosításkötéssel áll rendelkezésére!
Kérje személyre szabott ajánlatunkat Kollégáinktól!
További adatok
Telekterület: -
Kert mérete: -
Erkély mérete: -
Felszereltség: -
Parkolás: -
Kilátás: utcai
Egyéb extrák:  
Hirdető adatai
Hirdető neve: Otthon Centrum
Kapcsolattartó: Czifrik Mihály
Hirdető telefonszáma: +36 70 388 5546
Honlap: -
 
Üzenetet küldhet a hirdetőnek, árajánlatot tehet az ingatlanra:
Az Ön neve:
Az Ön e-mail címe:
Üzenet: