Ingatlan Televízió
Ingatlan Televízió
további hirdetések
adatlap bezárása

Pécsely 
 

Hivatkozási szám: 5847936
Ingatlan adatai
Irányár: 39 900 000 Ft
Típus: telek
Kategória: eladó
Alapterület: -
Fűtés: -
Állapota: -
Szobák száma: -
Építés éve: -
Szintek száma: -
Részletes leírás
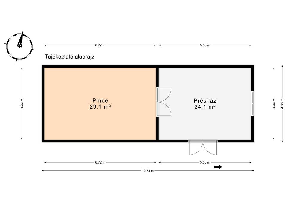
TÁJPANORÁMÁS PINCE ÉS SZŐLŐ A BALATON-FELVIDÉKEN

Pécselyen, 700 méterre a belterülettől eladó egy gondozott külterületi telek kis pincével, 14 sor termő szőlővel, gyümölcsfákkal, szép panorámával a környező dombokra.

A szőlő/gazdasági épület besorolású zártkerti telek télen-nyáron jól megközelíthető, a földszintes épület jelenleg a telek alsó, sík részén található, egy présházból és egy pincéből áll, állapota felújítandó/bontandó, belmagassága 307 cm.
A telek enyhén emelkedik, a felső része 240 méter magasan található, a szomszédos telkek is műveltek, gondozottak.

Az ingatlan a HÉSZ alapján kertes mezőgazdasági terület, Mk-1 besorolású övezet, ahol az alábbi rendeltetések, építmények helyezhetőek el:
a) 1 db szőlőműveléssel, szőlőfeldolgozással, borturizmussal összefüggő, szálláshelyet nem tartalmazó gazdasági épület,
b) szakrális műtárgy
c) tűzivíztározó, de kizárólag zártan, földbe süllyesztve, földdel fedetten.

Az ingatlan mezőgazdaságilag műveltnek minősül, építmény csak ilyen, minimum 80 %-ban művelt területen helyezhető el!

Az övezetben NEM HELYEZHETŐ EL:
a) önálló lakóépület, mobil lakóház, egyéb mobilház, lakókocsi, lakókonténer,
b) kerti tó, dísztó, medence, nyílt tűzivíztározó, tájgazdálkodási célú víztározó,
c) állattartó épület
d) szálláshely.

AZ MK-1 JELŰ ÖVEZET ELŐÍRÁSAI:
a) Kialakítható legkisebb telek területe: 3 000 m2
b) Beépíthető legkisebb telek területe: 3 000 m2
c) Beépíthető telek legkisebb szélessége: 14 m
d) Beépítési mód: szabadonálló
e) Legnagyobb terepszint feletti bruttó beépítettség: 3%, de legfeljebb 100 m2
f) Legnagyobb terepszint alatti beépítettség mértéke: 3%, de legfeljebb 100 m2
g) Legnagyobb épületmagasság: 4,0 m
h) Lejtő felőli homlokzat magasság: 6,5 m

Amennyiben a pécselyi telek felkeltette az érdeklődését, keressen bizalommal bármikor, akár hétvégén is!
További adatok
Telekterület: 3 688 m2
Kert mérete: -
Erkély mérete: -
Felszereltség: -
Parkolás: -
Kilátás: -
Egyéb extrák:  
Hirdető adatai
Hirdető neve: gmail.com - Török Ádám ev.
Kapcsolattartó: Török Ádám
Hirdető telefonszáma: 707052046
Honlap: -
 
Üzenetet küldhet a hirdetőnek, árajánlatot tehet az ingatlanra:
Az Ön neve:
Az Ön e-mail címe:
Üzenet: