Ingatlan Televízió
Ingatlan Televízió
további hirdetések
adatlap bezárása

Marcali 
 

Hivatkozási szám: 5847590
Ingatlan adatai
Irányár: 159 900 000 Ft
Típus: kereskedelmi/ipari ingatlan
Kategória: eladó
Alapterület: 535 m2
Fűtés: gáz (cirko)
Állapota: felújított
Szobák száma: -
Építés éve: 1970
Szintek száma: -
Részletes leírás
Eladó ipari ingatlan Marcali városközpontjához közel.

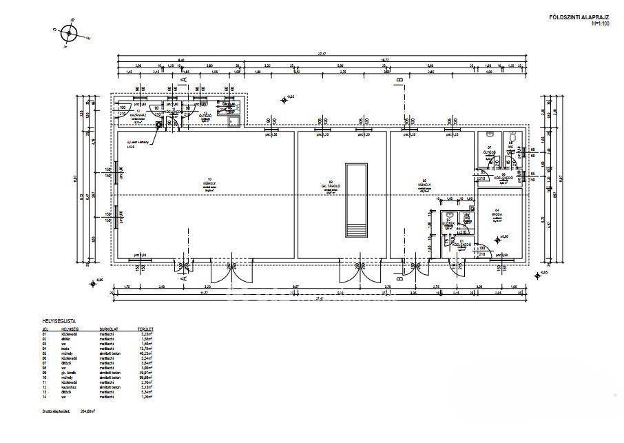
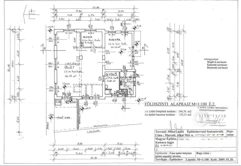
A 2536 nm-es telken három épület helyezkedik el. Az épületek összes alapterülete 535 nm.

Az első épület egy 135 nm alapterületű bemutató terem/üzlethelyiség, amely akár lakhatásra is átalakítható. Itt láthatunk egy nagy egybenyitott teret, egy irodahelyiséget, egy mellékhelyiséget, egy konyhasarkot és egy kazánházat. A tér 2 részre oszlik, az egyik a bemutató terem a másik egy raktárhelyiségként szolgáló kisebb terem.

A második épületben találhatóak a műhelyek és raktárak, irodával és mellékhelyiségekkel, fürdőszobával felszerelve.

A harmadik épület pedig egy nagy betonvázas tégla csarnok, amely elsősorban fedett raktározási célt szolgált, amíg az üzem működött. Nagyméretű elektromos ajtóval és hatalmas belmagassággal rendelkezik, így akár nagyobb gépek, alapanyagok, alkatrészek tárolására is alkalmas.

Az épületek 2015 környékén felújításra kerültek, ezáltal minden épület kapott hőszigetelést is.

Ipari árammal ellátott a telek, a fűtésről pedig gázcirkó, vegyes tüzelésű kazán, klíma és a bemutató teremben padlófűtés is gondoskodik.

A három épületen kívül szabadtéri tárolók is kerültek kialakításra a telken. Az udvar kialakítása teljes mértékben alkalmas az áruszállításra.

Ajánlom befektetési céllal rendelkező vásárlóknak, akár mezőgazdasági gépekkel, fa vagy fémmegmunkálással, gyártással, szereléssel foglalkozó vállalkozóknak, cégeknek.



Amennyiben felkeltette érdeklődését ez a nagyszerű lehetőség, keressen bizalommal!



M317364 - Győrki Mónika
További adatok
Telekterület: 2 536 m2
Kert mérete: -
Erkély mérete: -
Felszereltség: -
Parkolás: lakáshoz van kültéri parkoló
Kilátás: -
Egyéb extrák:  
Hirdető adatai
Hirdető neve: otpip.hu - Siófok Sió utca 10 - OTP Ingatlanpont Iroda
Kapcsolattartó: Győrki Mónika
Hirdető telefonszáma: +36306306128
Honlap: -
 
Üzenetet küldhet a hirdetőnek, árajánlatot tehet az ingatlanra:
Az Ön neve:
Az Ön e-mail címe:
Üzenet: