Ingatlan Televízió
Ingatlan Televízió
további hirdetések
adatlap bezárása

Püspökladány 
 

Hivatkozási szám: 5844760
Ingatlan adatai
Irányár: 148 900 000 Ft
Típus: kereskedelmi/ipari ingatlan
Kategória: eladó
Alapterület: 407 m2
Fűtés: gáz (cirko)
Állapota: felújított
Szobák száma: -
Építés éve: 2001
Szintek száma: -
Részletes leírás
Eladó Püspökladányban egy sokoldalúan hasznosítható üzlethelyiség!

Kiváló adottságokkal rendelkező földszintes + tetőtér beépítéses épület, amely számos lehetőséget kínál üzleti és lakófunkcióra egyaránt.

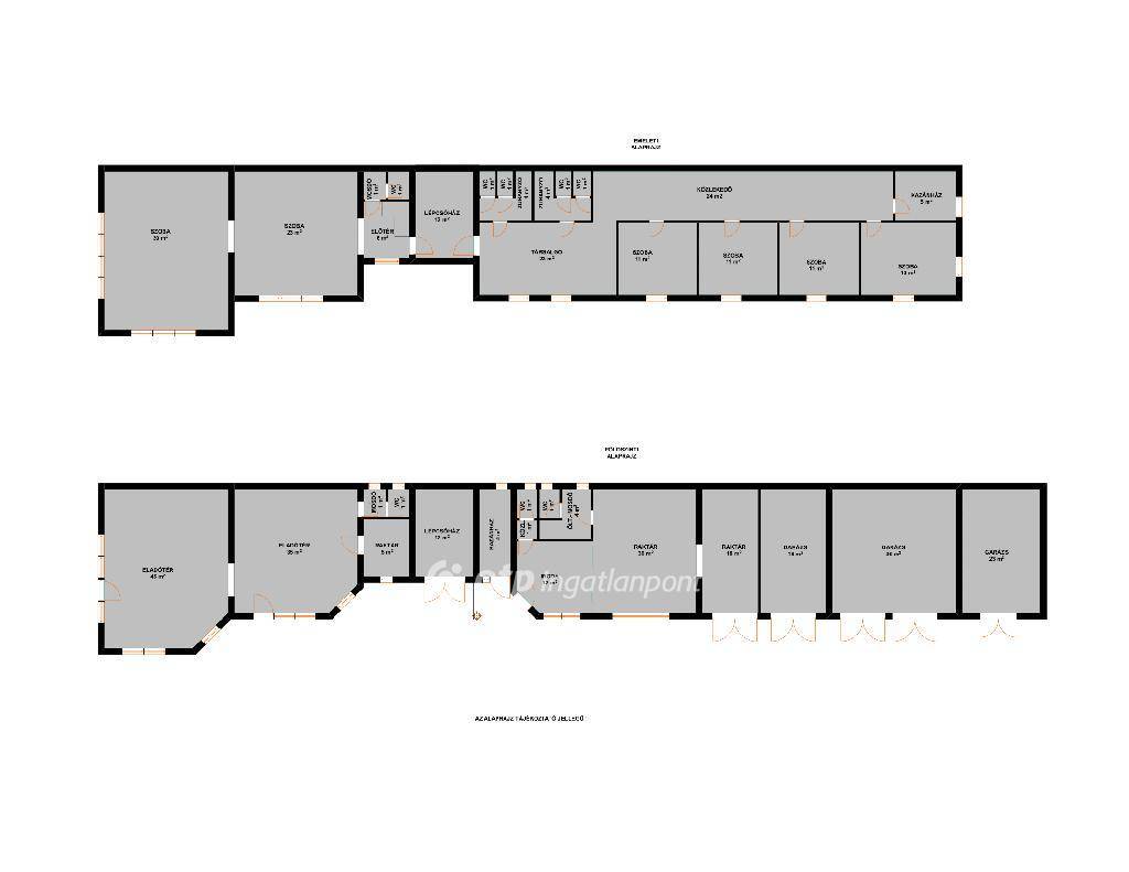
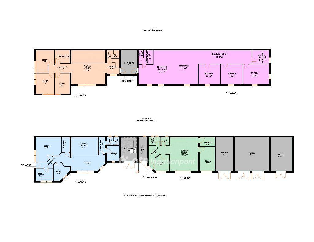
Az épület összesen 407 m2 beépített területtel rendelkezik, több különálló helyiségből áll, így akár üzletek, irodák, műhelyek vagy akár 4 lakás is kialakítható benne.

Főbb jellemzők:
- Telek mérete és beépíthetősége: 830 m2 és 40%
- Beépített terület: 236 m2 (földszint) + 171 m2 (tetőtér)
- Használati lehetőségek: üzletek, irodák, szolgáltatói egységek, lakások
- Parkolás: Telken belül 5 saját parkolóhely
- Elhelyezkedés: sík terepen, központi lokációban, oldalhatáron álló épület

Kialakítás és helyiségek:
Földszint:
- 2 db üzlethelyiség
- Raktárak - Különálló vizesblokkok (mosdók, WC-k)
- Garázsok és műhelyek

Tetőtér:
- Különálló szobák
- Üzlethelyiségek
- Különálló mosdók, WC-k

Műszaki adatok és felszereltség:
- Falazat: tégla
- Födém: monolit vasbeton
- Tető: nyeregtető, cserépfedéssel
- Nyílászárók: fa és fém szerkezetek
- Fűtés: gázkazán, melegvizes radiátorok, vegyestüzelésű kazán egy 1000 literes puffertartállyal, hűtő-fűtő klíma
- Közművek: teljes közművesítés (víz, csatorna, gáz, villany)

Az épület többféle funkcióra is alkalmas, így kiváló lehetőség vállalkozások, befektetők és ingatlanfejlesztők számára is. Az elrendezésnek és az építési szabályoknak megfelelően akár 4 önálló lakás, vagy több különálló üzlet és iroda is kialakítható benne.

A hirdetésben tervezett látványképek is meg vannak jelenítve, hogy segítsenek a végleges megjelenés pontosabb elképzelésében!

További információért hívjon bizalommal akár hétvégén is. Megtekintésre telefonos egyeztetés alapján van lehetőség. Kedvezményes kamatozású lakásvásárlási, felújítási hitelek, OTTHON START valamint CSOK és Babaváró ügyintézés az OTP hátterével irodánkban.
További adatok
Telekterület: -
Kert mérete: -
Erkély mérete: -
Felszereltség: -
Parkolás: lakáshoz van kültéri parkoló
Kilátás: -
Egyéb extrák:  
Hirdető adatai
Hirdető neve: otpip.hu - Debrecen Kürtös utca 8 - OTP Ingatlanpont Iroda
Kapcsolattartó: Mester Tibor
Hirdető telefonszáma: +36-20-806-7007
Honlap: -
 
Üzenetet küldhet a hirdetőnek, árajánlatot tehet az ingatlanra:
Az Ön neve:
Az Ön e-mail címe:
Üzenet: