Ingatlan Televízió
Ingatlan Televízió
további hirdetések
adatlap bezárása

Budapest, XVI.kerület 
 

Hivatkozási szám: 5843813
Ingatlan adatai
Irányár: 149 000 000 Ft
Típus: ház
Kategória: eladó
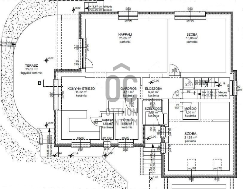
Alapterület: 144 m2
Fűtés: gáz (cirko)
Állapota: -
Szobák száma: 4
Építés éve: 1987
Szintek száma: -
Részletes leírás
Eladó a XVI. kerület Mátyásföldi részen, csendes utcában egy 114 m2-es 4 szobás, tégla építésű, szigetelt, gázkazán fűtésű teljeskörűen felújított családi ház

Álmodott már arról, hogy egy csendes, biztonságos utcában élhet, mégis mindenhez közel?
Mátyásföld egyik legkedveltebb részén most lehetősége van egy 114 m²-es, teljeskörűen felújított, 4 szobás tégla építésű családi házrész megvásárlására, amelyhez 513 m² saját kert tartozik a 855 m²-es telken belül.

Miért különleges ez az ingatlan?

Felújított és azonnal költözhető – 15 cm-es külső szigetelés, új műanyag nyílászárók redőnnyel és szúnyoghálóval, új elektromos hálózat és szerelvények, felújított burkolatok, frissen lakkozott parketta és újak a radiátorok is.

Modern konyha és bútorok – vadonatúj konyhabútor, előszobabútor, gardrób és korszerű konyhagépek várják az új tulajdonost.

Energiatakarékos megoldások – napkollektor (nemrég szervizelve, 10 évig gondozásmentes), korszerűsített gázkazán, amely három fűtési kört kezel (radiátor, padlófűtés, melegvíz).

Világos, kényelmes terek – 4 szoba, nagy nappali, jó elosztás, igazi otthonérzet.

Szuterén szint – raktár és tárolási lehetőség, ahol saját elképzeléseit is megvalósíthatja.

Amit imádni fog benne:

- A saját kert ideális hely pihenésre, családi összejövetelekre vagy akár kertészkedésre.
- Csendes, zöldövezeti környezet, ahol mégis pillanatok alatt elérhető minden városi kényelem.
- Teljes nyugalom, biztonság és igazi otthonhangulat, ahol nincs más dolga, csak beköltözni.

Amit az új tulajdonosnak kell majd befejezni:

- Kaputelefon bekötése
- Riasztó rendszer közös összehangolása a szomszéddal

Ezek azonban már apróságok egy olyan háznál, ahol a nagy és költséges felújítások mind el lettek végezve!

Ha Ön egy kész, igényes otthont keres Budapest egyik legkedveltebb kertvárosi részén, akkor ezt az ingatlant látnia kell!

Ne hagyja ki ezt a lehetőséget – az ilyen állapotú, saját kerttel rendelkező házak ritkán kerülnek piacra Mátyásföldön.

Hívjon most, és nézze meg személyesen, hogy beleszerethessen ebbe az otthonba!
További adatok
Telekterület: 855 m2
Kert mérete: 855 m2
Erkély mérete: -
Felszereltség: -
Parkolás: -
Kilátás: -
Egyéb extrák:  
Hirdető adatai
Hirdető neve: Otthon Centrum
Kapcsolattartó: Fleischer Andrea
Hirdető telefonszáma: +36 70 388 5946
Honlap: -
 
Üzenetet küldhet a hirdetőnek, árajánlatot tehet az ingatlanra:
Az Ön neve:
Az Ön e-mail címe:
Üzenet: