Ingatlan Televízió
Ingatlan Televízió
további hirdetések
adatlap bezárása

Budapest, XIV.kerület 
 

Hivatkozási szám: 5843522
Ingatlan adatai
Irányár: 180 900 000 Ft
Típus: ház
Kategória: eladó
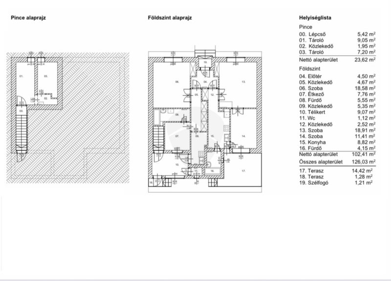
Alapterület: 110 m2
Fűtés: egyéb
Állapota: felújítást igényel
Szobák száma: 3+2
Építés éve: -
Szintek száma: -
Részletes leírás
Csendes, zöldövezeti 2 generációs családi ház Zuglóban, a Gödöllői utcában ????

Eladó XIV. kerület, Alsórákos egyik legkedveltebb utcájában egy 110 m²-es, tégla építésű, 2 generációs családi ház, 521 m²-es telken.

✨ Főbb jellemzők:

Alapterület: 110 m²

Telek: 521 m²

Szobák: 3 + 1 félszoba

Konyha: 2 étkezős konyha

Fürdőszobák: 2

Építés éve: 1951

Fűtés: gázcirkó

Szerkezet: tégla

Tető: pala (tetőtér beépíthető)

Belmagasság: 230 cm

Tájolás: dél

Nyílászárók: fa (felújítandó állapotban)

???? Leírás:

A ház két külön bejáratú lakrészt kínál, külön villanyórákkal és fürdőkkel, így kiválóan alkalmas két generáció együttélésére vagy akár befektetésre.
A nagy, napfényes terasz és a tágas, gondozott kert ideális helyszíne a pihenésnek és családi, baráti összejöveteleknek.
A kertben fészer és fedett sütögetős rész is található.

Az ingatlan lakható állapotú, de igény szerint felújítható, így az új tulajdonos saját ízlésére formálhatja.

???? Környék:

Nyugodt, zöldövezeti, csendes utca, jó szomszédság, családias hangulat.
Mégis minden néhány perc sétával elérhető – buszmegálló, iskola, óvoda, bevásárlási lehetőségek a közelben.
Kiváló közlekedés és gyors elérhetőség a belváros felé.
További adatok
Telekterület: 521 m2
Kert mérete: 521 m2
Erkély mérete: 16 m2
Felszereltség: -
Parkolás: -
Kilátás: udvari
Egyéb extrák:  
Hirdető adatai
Hirdető neve: Rock Home
Kapcsolattartó: Németi-Loósz Henriett
Hirdető telefonszáma: +36 70 412 5641
Honlap: -
 
Üzenetet küldhet a hirdetőnek, árajánlatot tehet az ingatlanra:
Az Ön neve:
Az Ön e-mail címe:
Üzenet: