Ingatlan Televízió
Ingatlan Televízió
további hirdetések
adatlap bezárása

Püspökladány 
 

Hivatkozási szám: 5843075
Ingatlan adatai
Irányár: 11 900 000 Ft
Típus: ház
Kategória: eladó
Alapterület: 61 m2
Fűtés: gáz (konvektor)
Állapota: felújítást igényel
Szobák száma: 2
Építés éve: 1920
Szintek száma: 1
Részletes leírás
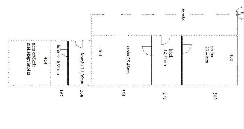
Püspökladány Hajdú-Bihar vármegye székhelyétől Debrecentől kb 50km-re található DNy-i irányba.A vizsgált ingatlan a város ÉK-i részén,családi házas környezetben,rendezett utcában van.A lakóépület 1920 körül épült,vályogfalazatú.A főépült 3helyiségből áll,2 szoba,közlekedő.A fűtést a 2 szobában gázkonvektor biztosítaná,de a közműszolgáltatás jelenleg szünetel.A főépületen statikai problémákra utaló jelek szemmel nem láthatóak,a belső helyiségek felújítást igényelnek.A tornác födémborítása hiányos.A főépület mögötti található melléképületben van a konyha és a fürdőszoba kialakítva.A konyhában jelenleg nincs vízvételi lehetőség.A fürdőszobában a falszerkezeten repedések láthatóak,gyors javítás esetén az állagmegóvás biztosítottnak tűnik.A fürdőszobában nincs fűtés,épületrészben nincs melegvízellátás.Összességében az ingatlan helyreállítása vélelmezhetően gazdaságos. Az értékelés a 2025.06.23-i keltezésű tulajdonlap adatai alapján készült.Az ingatlan közterületről közvetlenül megközelíthető,és egyértelműen beazonosítható.Térképmásolati kontúrok megegyeznek a valóságos állapottal. A vizsgált ingatlan egylakásos lakóépületnek minősül, melynek beépítési módja oldalhatáron álló.
Érd.Balla László +36 30 419 5022

Referencia szám: M313046
További adatok
Telekterület: 2 020 m2
Kert mérete: -
Erkély mérete: -
Felszereltség: -
Parkolás: -
Kilátás: -
Egyéb extrák:  
Hirdető adatai
Hirdető neve: otpip.hu - Debrecen Piac utca 53-55 - OTP Ingatlanpont Iroda
Kapcsolattartó: Balla László
Hirdető telefonszáma: +36-30-419-5022
Honlap: -
 
Üzenetet küldhet a hirdetőnek, árajánlatot tehet az ingatlanra:
Az Ön neve:
Az Ön e-mail címe:
Üzenet: