Ingatlan Televízió
Ingatlan Televízió
további hirdetések
adatlap bezárása

Egyházaskesző 
 

Hivatkozási szám: 5842784
Ingatlan adatai
Irányár: 14 000 000 Ft
Típus: ház
Kategória: eladó
Alapterület: 633 m2
Fűtés: egyéb
Állapota: felújítást igényel
Szobák száma: 4+2
Építés éve: 1950
Szintek száma: 1
Részletes leírás
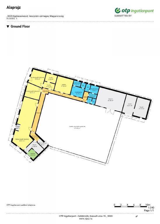
Eladásra kínálok Veszprém vármegyében, Egyházaskeszőn, egy az 1950-es években épült, korábban több funkciót is betöltő ingatlant 1753 m2-es telken. A település Pápától 20 km-re északnyugatra fekszik a Rába-folyó árterében. A Pápa-Csorna vasútvonal Rábahíd megállója 2 km-re van. Az ingatlan elrendezése szempontjából áll több szobából, korábban konyha- és technológiai térből, irodából, raktárból, vizesblokkokból. A főépülethez szerelőműhely, gazdasági épületek és 370,85 m2 fedett kültéri rész, valamint egy pince csatlakozik, amelyek további lehetőségeket kínálnak. A ház melegéről cserépkályhák, kályhák gondoskodnak, viszont az utcában megtalálható a gázcsonk, így akár gáz központifűtésrendszer kialakítására is van lehetőség. A meleg vizet villanybojler szolgáltatja. A telek teljes mértékben körbekeritett, hátsó felében füves udvar található. Az ingatlan felújitandó, tetőszerkezete korának megfelelő. Valamennyi nyílászáró anyaga fa, szimpla üvegezéssel. A helyiségek sokoldalúsága miatt az ingatlan,részleges vagy teljes felújítás után számtalan módon hasznosítható: a korábban kocsmaként üzemelő rész még mindig rendelkezik az üzletté nyilvánítással, így könnyedén újranyitható vendéglátóipari egységként. Családok részére az épület többgenerációs családi otthonnak is kiváló, illetve vállalkozásra, műhelynek, gazdálkodásra is alkalmas. Ez az ingatlan igazi ritkaság, hiszen egyszerre nyújt lehetőséget otthonteremtésre és üzleti elképzelések megvalósítására! A település nem messze található Pápától, Csornától és Győrtől. A környék kiváló közlekedési lehetőségekkel bír, a természetközeli környezet és a falusias nyugalom pedig ideális választás azoknak, akik békésebb életre vágynak, de szeretnének nagyobb városokhoz is közel lenni. Ajánlom mindazon érdeklődők figyelmébe, akik falun, nyugodt családias környezetben keresnek otthont vagy kivánnak vállalkozásba kezdeni. Az OTP Ingatlanpont teljes körű ügyintézéssel áll az eladók és a vevők rendelkezésére. A kínálatunkból választott ingatlan finanszírozásához kedvezményes hitelkonstrukciót kínálunk. Az adásvételi szerződés megkötéséhez igény szerint megbízható ügyvédi közreműködést biztosítunk, és segítséget nyújtunk az adásvételhez kapcsolódó ügyek intézéséhez is. Az ingatlanról készült alaprajz, illetve fényképfelvételek az Otp ingatlanpont szellemi tulajdonát képezik. A hirdetésben szereplő képek és szöveg az Otp ingatlanpont szellemi tulajdonát képezik. Ne hagyja ki ezt a kiváló befektetési lehetőséget, amennyiben felkeltette érdeklődését az általam kínált ingatlan, keressen bizalommal!

Az energetikai tanúsítvány készítése folyamatban van, amint rendelkezésre áll, úgy azzal a hirdetés frissítésre kerül.



14000000 Ft
Amennyiben az ingatlan felkeltette érdeklődését, esetleg bármivel kapcsolatban kérdése lenne, keressen Bizalommal! Verrasztó Edina: +36703156380

Referencia szám: M316075-ITV
További adatok
Telekterület: 1 753 m2
Kert mérete: -
Erkély mérete: 371 m2
Felszereltség: -
Parkolás: garázs
Kilátás: -
Egyéb extrák:  
Hirdető adatai
Hirdető neve: otpip.hu - Pápa Eötvös utca 16 - OTP Ingatlanpont Iroda
Kapcsolattartó: Verrasztó Edina Irén
Hirdető telefonszáma: +36703156380
Honlap: -
 
Üzenetet küldhet a hirdetőnek, árajánlatot tehet az ingatlanra:
Az Ön neve:
Az Ön e-mail címe:
Üzenet: