Ingatlan Televízió
Ingatlan Televízió
további hirdetések
adatlap bezárása

Hajdúsámson 
 

Hivatkozási szám: 5842053
Ingatlan adatai
Irányár: 55 900 000 Ft
Típus: ház
Kategória: eladó
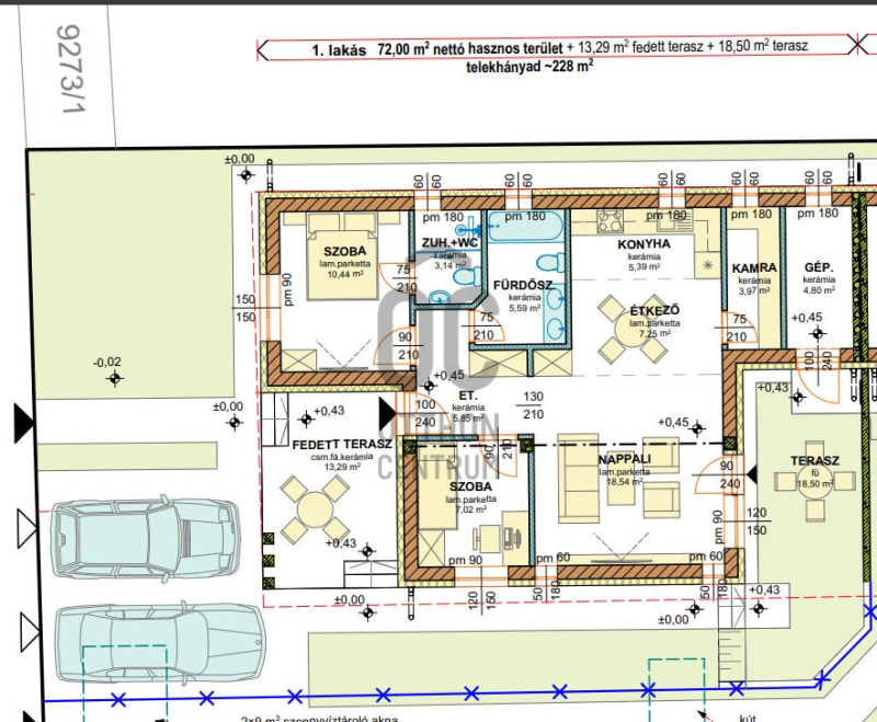
Alapterület: 72 m2
Fűtés: gáz (cirko)
Állapota: új
Szobák száma: 3
Építés éve: 2026
Szintek száma: -
Részletes leírás
A 72 négyzetméteres alapterülettel rendelkező, új építésű házban tágas nappali + 2 szoba és két fürdőszoba vár rád. Az amerikai konyhás nappali a középpontja a lakásnak, ahol barátaiddal és családoddal együtt élvezheted a közös pillanatokat. A 13 és 18,5 négyzetméteres terasz ideális helyszín a reggeli kávézáshoz vagy a nyári grillpartikhoz, miközben a panorámát csodálhatod. A ház fűtése gáz cirkó rendszerrel működik, ami gazdaságos és kényelmes megoldást kínál a hideg téli hónapokban, míg a klíma a nyári melegben biztosítja a kellemes hőmérsékletet.
A közel 240 m2 telek tökéletesen alkalmas kertkapcsolatos lakás kialakítására, így a szabadban eltöltött idő mindenki számára élvezetes lehet. Az ingatlan modern dizájnja és praktikus elrendezése lehetővé teszi, hogy a hétköznapokban is maximálisan kihasználhasd a teret. A környék csendes és biztonságos, ideális helyszín a fiatal felnőttek számára, akik értékelik a nyugodt, de mégis élénk városi életet. A közlekedési lehetőségek kiemelkedőek: a városközpont mindössze néhány percre található, így a mindennapi teendőid könnyedén megoldhatóak.

A ház jellemzői:
- 30-as téglafalazat 15 cm hőszigeteléssel
- 3 rétegű műanyag nyílászárók
- gáz cirkó padlófűtéssel a szobákban radiátoros hőleadókkal
- az ingatlan fúrt kúttal nyert vízzel ellátott, és ingatlanonként külön zárt szennyvíztároló építve
- a nappaliban 1 db inverteres klíma kerül
- autó beállási lehetőség az udvaron
-osztatlan közös terület, ügyvédileg szabályozott használati szerződéssel

Az ingatlanra CSOK+, babaváró és piaci hitel igénybevehető!
Az Otthon Start hitelnek a település nem felel meg.
Átadás: 2027. március


A tömegközlekedés is jól kiépített, így bármikor gyorsan elérheted Debrecent vagy a környező településeket. A közeli boltok, éttermek és szolgáltatások mind hozzájárulnak ahhoz, hogy minden szükséges dolog karnyújtásnyira legyen. Ez az ingatlan nemcsak egy otthon, hanem egy lehetőség is a jövőd építésére. Ha befektetési céllal keresel ingatlant, ez a modern ház tökéletes választás lehet, hiszen a környék folyamatosan fejlődik, és a kereslet egyre nő. Ne habozz, hiszen az ilyen lehetőségek gyorsan elkelnek! Kérlek, bátran keresd fel kérdéseiddel, hiszen itt vagyok, hogy segítsek neked a legjobb döntés meghozatalában!
További adatok
Telekterület: 240 m2
Kert mérete: 240 m2
Erkély mérete: 10 m2
Felszereltség: -
Parkolás: -
Kilátás: -
Egyéb extrák:  
Hirdető adatai
Hirdető neve: Otthon Centrum
Kapcsolattartó: Rákosné Tímea
Hirdető telefonszáma: +36 70 412 5026
Honlap: -
 
Üzenetet küldhet a hirdetőnek, árajánlatot tehet az ingatlanra:
Az Ön neve:
Az Ön e-mail címe:
Üzenet: