Ingatlan Televízió
Ingatlan Televízió
további hirdetések
adatlap bezárása

Ráckeresztúr 
 

Hivatkozási szám: 5841931
Ingatlan adatai
Irányár: 94 900 000 Ft
Típus: ház
Kategória: eladó
Alapterület: 190 m2
Fűtés: gáz (cirko)
Állapota: -
Szobák száma: 5
Építés éve: 1994
Szintek száma: -
Részletes leírás
Ráckeresztúr egyik CSENDES utcájában található ez a 3 SZINTES, 5 tágas szobával rendelkező családi ház. GYÖNYÖRŰEN FELÚJÍTOTT!!!
BEFEKTETŐKNEK IS AJÁNLJUK: ha szolgalmi utat létesít, a telek hátsó része megközelíthető. A telek ketté osztható és így még egy ház felépítése is lehetséges.


- KANDALLÓ!
- 4db. KLÍMA!!!
- áram: 1 x 20Amper, 2 x 16Amper, 3 fázis bent van
- cseréptető, B30-as téglából épült, 1994-ben épült, 5cm szigetelés
- betonfödémes, erős szerkezetű
- tető: 15cm szigetelés
- vadonat új kondenzációs gázkazán


Földszint:
- a földszinten össze lehet vonni az étkezőt és a nappalit és egy AMERIKAI-KONYHÁS-ÉTKEZŐS-NAPPALIT lehetne ott létesíteni
- így felszabadulna a jelenlegi konyha helyiség és abból egy lakószobát lehetne kialakítani
- mivel van a felszínen egy 2 beállásos garázs, így a ház alatti garázst SZUTERÉN-LAKÁSKÉNT lehetne használni
- pl. a garázsból egy szobát alakítani és egy fürdőszobát és egy konyhát kialakítani
- ez akár egy NAGYSZÜLŐNEK vagy egy SZÁRNYAT BONTÓ FIATALNAK is egy kiváló lehetőség
- aki nem alakítja át, az MŰHELYKÉNT is használhatja és mellette élvezheti a WHIRLPOOL-os MOZI-ÉRZÉST és a SZAUNÁT, mellette jelenleg zeneszoba van
- továbbá van egy ÓRIÁSI FEDETT TERASZ, egy KIVILÁGÍTOTT SZALETLI PÁLMÁKKAL, egy FEDETT SÜTÖGETŐ-BOGRÁCSOZÓ, egy KERTI SZERSZÁM-TÁROLÓ és egy 2 BEÁLLÁSOS GARÁZS SZERELŐAKNÁVAL
- továbbá egy kis dolgozó szoba és egy tusolós fürdőszoba-WC is található ezen a szinten

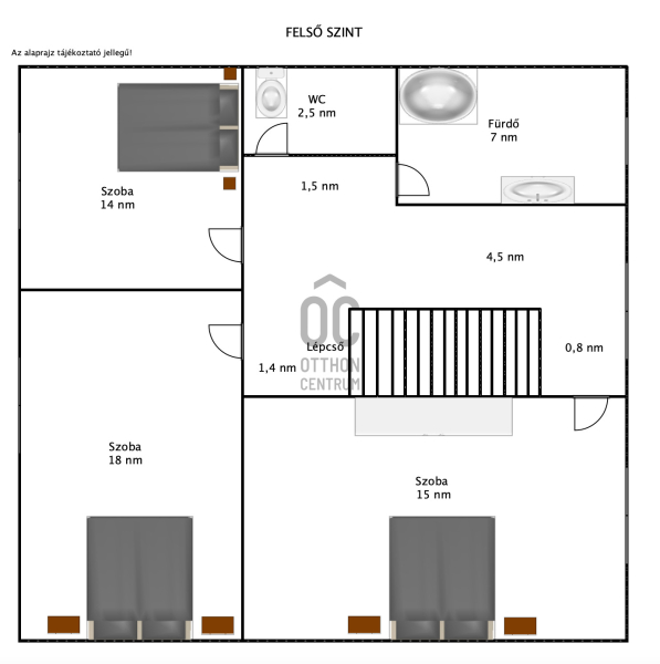
Felső emelet:
- 3 tágas szoba, egy nagy és kényelmes WC-helyiség, egy kádas-fürdőszoba

Alsó szint:
- Garázs/Műhely, Wellness-Mozi-Szauna szoba, Zeneszoba

Kert:
- tároló, 2 beállásos garázs szerelőaknával, fedett terasz, fedett sütögető-bográcsozó és egy óriás telek lehetőségekkel


Autópálya a közelben. Buszmegálló 6-7 perc gyalog az utca végén (Martonvásár, Ercsi, Százhalombatta és Ráckeresztúr járattal). Martonvásárból vonatok is indulnak, akár Budapestre. Ajánlom nagycsaládosoknak, összeköltözőknek, többgenerációs megoldásnak és befektetőknek (telekmegosztás stb.).

Várom megkeresését!
További adatok
Telekterület: 2 042 m2
Kert mérete: 2 042 m2
Erkély mérete: 21 m2
Felszereltség: -
Parkolás: -
Kilátás: -
Egyéb extrák:  
Hirdető adatai
Hirdető neve: Otthon Centrum
Kapcsolattartó: Sebestyén-Teleki Zsófia
Hirdető telefonszáma: +36 70 388 5046
Honlap: -
 
Üzenetet küldhet a hirdetőnek, árajánlatot tehet az ingatlanra:
Az Ön neve:
Az Ön e-mail címe:
Üzenet: