Ingatlan Televízió
Ingatlan Televízió
további hirdetések
adatlap bezárása

Gyömrő 
 

Hivatkozási szám: 5841823
Ingatlan adatai
Irányár: 108 000 000 Ft
Típus: ház
Kategória: eladó
Alapterület: 93 m2
Fűtés: -
Állapota: új
Szobák száma: 4
Építés éve: 2025
Szintek száma: -
Részletes leírás
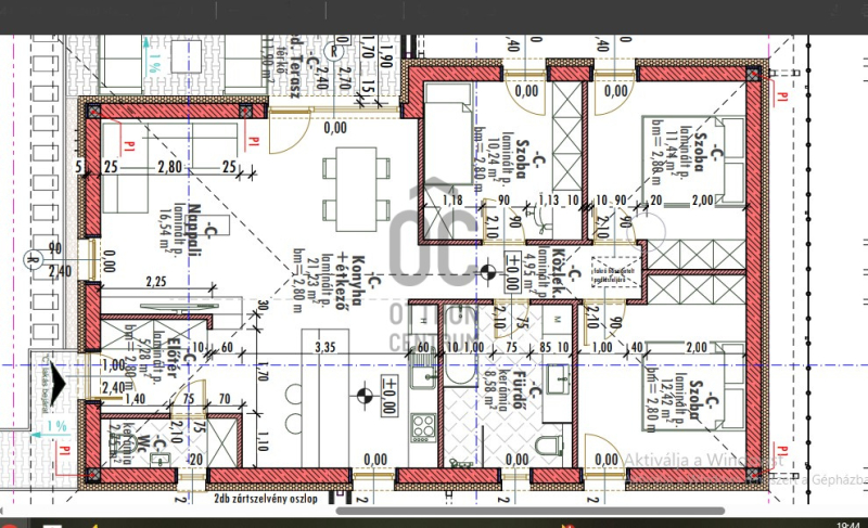
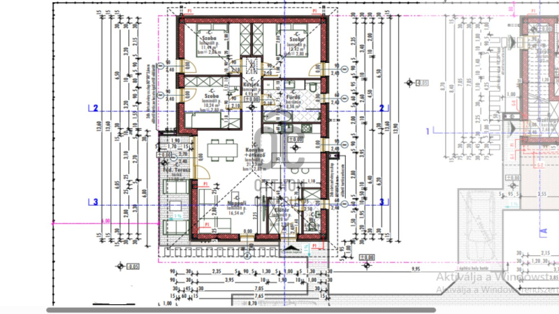
A város exkluzív, sorompóval zárt lakóövezetében, a Kastélydomb Lakóparkban kerül most értékesítésre ez a családi ház.

Biztonságos, igényes környezet, modern stílus, jellemzi ezt a 93,43 m2-es nappali + 3 hálószobás ingatlant.
Tervezett befejezése 2026. 05 hó.

A belső elrendezés még szabadon alakítható, így teljes mértékben saját ízlésére szabhatja a végső kialakítást!

- 93,43 m² nettó lakótér,11,09 m² terasz (2,8 m belmagasság!)
- 235 m² hozzá tartozó kert
- 30-as tégla fal, 15 cm-es homlokzati hőszigeteléssel
- a fűtést és meleg vizet hőszivattyú biztosítja padlófűtéssel
- kocsibeálló a telken belül
- amerikai konyhás nappali
- 3 hálószoba
- fürdőszoba WC-vel
- külön WC

Miért éppen Kastélydomb Lakópark?

Kiváló infrastruktúra: iskola, óvoda, bölcsőde, üzletek, pékség, orvosi rendelő és gyógyszertár mind perceken belül elérhetők
Gyors közlekedés Budapest felé: az M4-es autóút és az M0-s körgyűrű könnyen megközelíthető
A gyömrői Tófürdő, uszoda, parkok, sportolási lehetőség a közelben.

További információért kérem keressen!
További adatok
Telekterület: 235 m2
Kert mérete: 235 m2
Erkély mérete: 12 m2
Felszereltség: -
Parkolás: -
Kilátás: -
Egyéb extrák:  
Hirdető adatai
Hirdető neve: Otthon Centrum
Kapcsolattartó: Nemes Mária
Hirdető telefonszáma: +36 70 716 9176
Honlap: -
 
Üzenetet küldhet a hirdetőnek, árajánlatot tehet az ingatlanra:
Az Ön neve:
Az Ön e-mail címe:
Üzenet: