Ingatlan Televízió
Ingatlan Televízió
további hirdetések
adatlap bezárása

Pilis 
 

Hivatkozási szám: 5841764
Ingatlan adatai
Irányár: 44 000 000 Ft
Típus: ház
Kategória: eladó
Alapterület: 170 m2
Fűtés: gáz (cirko)
Állapota: -
Szobák száma: 5
Építés éve: -
Szintek száma: -
Részletes leírás
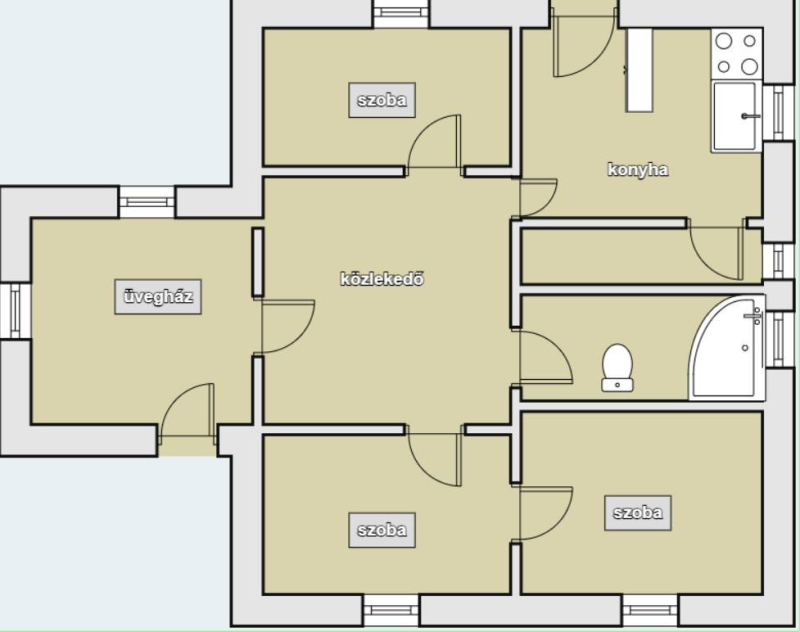
Két generációs ház , Pilis belváros szívében.Pilis város Központhoz közeli utcájában található ez a lakóház udvar besorolású , vert sárfalas lakóház.Szép nagy telken 1297nm telken terül el. Maga a főépület illetvea kertben egy könnyű szerkezetes 70nm alapterületű ház is megépült, ahol 2 háló , amerikai konyhás nappali , fürdő, illetve terasz kiosztású.Cserép fedéssel készült.A nagy ház tetőszerkezete pár éve lett felújítva.A főépület 100nm -es, 3 szobából , tágas konyha ebédlő , kamra , fürdő , télikert , közlekededő helységekből áll.Két bejáttal rendelkezik , a második konyhából egy kertkapcsolatos teraszra nyílik.Minden közmű bekötve , fúrt kút is van.Fűtését tekintve központi fűtés cirkoról vezérelve mindkét épületben.Állomástól 10 percnyi sétára , illetve penny posta otp pár száz méternyire.Irodánk ügyfelei részére ingyenes hitel ügyintézéssel áll rendelkezésükre, továbbá segítséget nyújtunk adásvételi szerződéshez ügyvédi háttér biztosításához ,és energetikai tanúsítvány elkészítésében is. Pilis menet rendszerű vonatközlekedéssel rendelkezik, mely Budapest Nyugati pályaudvartól 48 perces menet idővel közelíthetõ meg, Budapestõl 50 km távolságra ,Ferihegy repülõtértõl az új M4 autópályán 30 km távolságra helyezkedik el. Amennyiben felkeltettem érdeklődését, kérem hívjon bizalommal, és találjuk meg álmai otthonát. Vevőinknek szolgáltatásaink ingyenesek ! Bankfüggetlen, díjmentes hiteltanácsadás, energetikai tanúsítvány készítése egy nap alatt, értékesítés gyorsan és profin.... Mert mi itthon vagyunk! Ha felkeltettem az érdeklődését, kérem keressen . Pilis Anna 06204004025

 
További adatok
Telekterület: 1 297 m2
Kert mérete: 1 297 m2
Erkély mérete: -
Felszereltség: -
Parkolás: -
Kilátás: -
Egyéb extrák:  
Hirdető adatai
Hirdető neve: Dabas Régió
Kapcsolattartó: Pilis Anna
Hirdető telefonszáma: 06204004025
Honlap: -
 
Üzenetet küldhet a hirdetőnek, árajánlatot tehet az ingatlanra:
Az Ön neve:
Az Ön e-mail címe:
Üzenet: