Ingatlan Televízió
Ingatlan Televízió
további hirdetések
adatlap bezárása

Nagykőrös 
 

Hivatkozási szám: 5841728
Ingatlan adatai
Irányár: 34 500 000 Ft
Típus: ház
Kategória: eladó
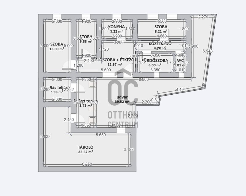
Alapterület: 59 m2
Fűtés: egyéb
Állapota: -
Szobák száma: 3
Építés éve: 1930
Szintek száma: -
Részletes leírás
Az eladásra kínált családi ház 193 m² teljesen körbe kerített, zárt területen fekszik.
Az ingatlan Nagykőrösön, a belvároshoz közel, egy átmenő forgalomtól mentes, csendes, egyirányú utcában helyezkedik el.

Az épület szerkezetileg jó állapotban van, műszaki és esztétikai állapota átlagos.
A ház frissen felújított elemekkel is büszkélkedhet, amelyek modern megjelenést kölcsönöznek a helyiségeknek.

Három szoba, előszoba+étkező, konyha, közlekedő valamint fürdőszoba és külön WC helyiségek kerültek kialakításra.
A ház bruttó 59 m² hasznos alap területtel rendelkezik, elegendő teret biztosít kisebb családok számára.
Ez a ház nem csupán egy ingatlan, hanem egy lehetőség, hiszen a külön nyíló szobák kiváló életteret adnak az ott élők számára.
A konyha és a szobák ablaka az utcára néz, tájolásának köszönhetően FÉNYES, VILÁGOS.
A 290 cm belmagasság pedig még tágasabbá varázsolja a teret, így otthona mindig világos és barátságos lesz.
A ház jól karban tartott, egy tisztasági festés után igény szerint azonnal költözhető!
A kert mérete bár nem nagy méretű, de a fedett terasszal együtt ideális lehet grillezéshez, és kerti partikhoz.
A főépület folytatásában egy kisebb épület is megtalálható, mely jelenleg praktikus tárolási lehetőségeket biztosít.
Nagyobb ráfordítással - igény szerint - akár egy külön lakrész is kialakítható belőle.

A fűtés vegyes kazánnal megoldott, ami gazdaságos és kényelmes megoldás a téli hónapokban.
Hő leadása lapradiátorok segítségével történik, gáz az utcán, vízellátás jelenleg furtról megoldható.

MŰSZAKI JELLEMZŐK
- tégla alap
- falazat: vegyes (vályog+tégla)
- 1950-ban épült
- ÚJ TETŐSZERKEZET
- fa födém
- új lemezes cseréppel fedett
- a külső és belső nyílászárók jó állapotú, fa szerkezetű
- padlóburkolatok laminált parketta
- fűtés vegyes kazánnal
- új fűtés rendszer
- új radiátorok
- új vízvezeték rendszer
- új villany
- új bojler
- új burkolatok
- alumínium eresz

Amennyiben gyerekekkel együtt költözne, az iskola, óvoda 600 méter távolságon belül elérhető.
Város központ 1.7 km távolságra, gyalogosan is 15 perc alatt, könnyen megközelíthető.
Aldi, Tibiker valamint kisebb bevásárlási lehetőségek a közetlen közelben.
Ez a ház tökéletes választás mindazok számára, akik egy világos, csendes környezetben szeretnének élni.
Ugyanakkor a város központi elhelyezkedésének előnyeit is élvezheti.
Az ingatlan tehermentes, így azonnal birtokba vehető.

Amennyiben a fotók felkeltették az érdeklődését, további információkért a tulajdonos kérésére kérem, keressen elérhetőségeimen.
Irodánk ügyvédi háttérrel, bankfüggetlen hitel közvetítéssel, teljes körű ügyintézéssel vár.
Az Ön elégedettsége a legfontosabb számomra, és örömmel segítek Önnek a legjobb döntés meghozatalában!

#Nagykőrös #felújított #háromszoba #vegyesfalazat #családiház #vegyeskazán #fedettterasz #fanyílászárók #tehermentes

Ez az ingatlan a \\\"Felező csomag\\\" megbízási portfólióhoz tartozik. Részletek az Otthon Centrum weboldalán.
További adatok
Telekterület: 193 m2
Kert mérete: 193 m2
Erkély mérete: -
Felszereltség: -
Parkolás: -
Kilátás: -
Egyéb extrák:  
Hirdető adatai
Hirdető neve: Otthon Centrum
Kapcsolattartó: Kállai Rózsa
Hirdető telefonszáma: +36 70 412 4131
Honlap: -
 
Üzenetet küldhet a hirdetőnek, árajánlatot tehet az ingatlanra:
Az Ön neve:
Az Ön e-mail címe:
Üzenet: