Ingatlan Televízió
Ingatlan Televízió
további hirdetések
adatlap bezárása

Budapest, XI.kerület 
 

Hivatkozási szám: 5841587
Ingatlan adatai
Irányár: 79 900 000 Ft
Típus: kereskedelmi/ipari ingatlan
Kategória: eladó
Alapterület: 96 m2
Fűtés: -
Állapota: -
Szobák száma: -
Építés éve: 1980
Szintek száma: 1
Részletes leírás
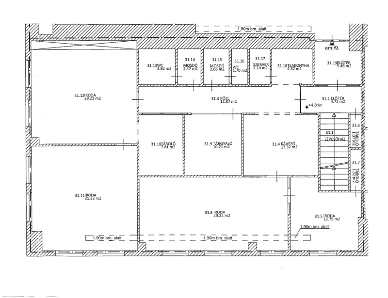
Budapest XI. kerület, Albertfalván, a budafoki út közelében, ipari területen lévő 192 m2-es felújított irodahelyiség 1/2 tulajdonjoga eladó!
Az ingatlan rendezett jogi háttérrel (társasház önálló helyrajzi számú irodákkal, saját mérők), délkeleti tájolással és saját parkolóval rendelkezik. Elsőrendű autós és teherautós közlekedési kapcsolat. 2020-ban felújításon esett át (vezetékek, burkolatok, nyílászárók, beépített konyha) riasztóval és valamennyi helyisége klímával van felszerelve. Közlekedési szempontból az iroda páratlan lehetőségeket nyújt. Az MO körgyűrű csomópontja mindössze 2 km-re, a 6-os főút 1000 méterre található, míg az M1 és M7 közös bevezető szakasza 5 km-re helyezkedik el. A Rákóczi híd budai hídfője 3 km-re van, és a repülőtér autóval 50 perc alatt elérhető. A közlekedés még egyszerűbbé válik, hiszen a 33,133E buszok az épület előtt állnak meg, míg további busz- és villamosjáratok mindössze 5-10 perces sétával elérhetők.
További adatok
Telekterület: -
Kert mérete: -
Erkély mérete: -
Felszereltség: -
Parkolás: -
Kilátás: -
Egyéb extrák:  
Hirdető adatai
Hirdető neve: GDN Ingatlanhálózat
Kapcsolattartó: Agatity Roland
Hirdető telefonszáma: +36-70-421-3991
Honlap: -
 
Üzenetet küldhet a hirdetőnek, árajánlatot tehet az ingatlanra:
Az Ön neve:
Az Ön e-mail címe:
Üzenet: