Ingatlan Televízió
Ingatlan Televízió
további hirdetések
adatlap bezárása

Kecskemét 
 

Hivatkozási szám: 5841503
Ingatlan adatai
Irányár: 750 000 000 Ft
Típus: kereskedelmi/ipari ingatlan
Kategória: eladó
Alapterület: 540 m2
Fűtés: gáz (cirko)
Állapota: felújított
Szobák száma: -
Építés éve: -
Szintek száma: -
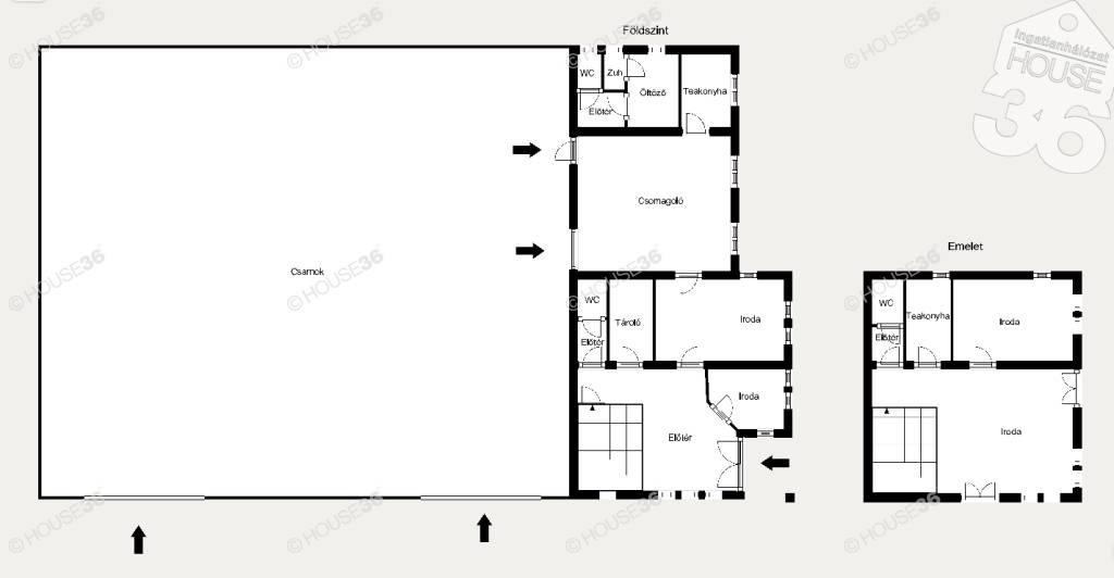
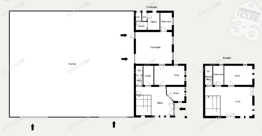
Részletes leírás
Kecskeméten 540 m2-es ipari használatú épület 1457 m2-es telken eladó!

Jellemzők:


540 m2 felépítmény
2010-es építés
kiépített informatikai, tűzjelző, telefonközpontés riasztó hálózat (optikai szálas internet kiépítve)
összközmű
tűzálló festékkel festett csarnokváz, Tűzi-víz csapok kiépítve, kiépített tűzoltósági távfelügyelet
2 db videó kaputelefon
elektromos személy illetve toló kapu
automata öntöző rendszer
parkosított udvar
műanyag nyílászárók, UVálló védő fóliával ellátva
2 tea konyha
kiépített öltöző, fürdővel
bemutató/csomagoló terem
4 iroda
Hörmann és Tormax kapuk a csarnokon
csarnokba további öltöző létesítési lehetőség
18 cm vastag ipari beton a csarnokban
központi szünetmentes áramforrás rendszer kiépítve (készülék nélkül)
elektromos rejtett redőny előkészítve
klimatizált irodák
térköves udvar
lehajtható zászló rudak az udvarban
elektromos áram bővítési lehetőség
6 parkoló
Teherautóval könnyen megközelíthető ​


Figyelem az adatlap megbízóinktól kapott adatok
alapján készült,pontosságáért felelősséget
nem tudunk vállalni!


A HOUSE36 kínálatában található összes ingatlannal
kapcsolatban tudok felvilágosítást nyújtani!
Hívjon bizalommal!
Szolgáltatásaink Kereső ügyfeleink számára
INGYENESEK!


750000000 Ft
Az iroda legfrissebb, aktuális kínálatát a HOUSE36 saját weboldalán találja!
További adatok
Telekterület: -
Kert mérete: -
Erkély mérete: -
Felszereltség: -
Parkolás: lakáshoz van kültéri parkoló
Kilátás: -
Egyéb extrák:  
Hirdető adatai
Hirdető neve: h36.hu - HOUSE36 Ingatlanhálózat
Kapcsolattartó: Dakó Ferenc András
Hirdető telefonszáma: +36706086030
Honlap: -
 
Üzenetet küldhet a hirdetőnek, árajánlatot tehet az ingatlanra:
Az Ön neve:
Az Ön e-mail címe:
Üzenet: