Ingatlan Televízió
Ingatlan Televízió
további hirdetések
adatlap bezárása

Füzesabony 
 

Hivatkozási szám: 5841346
Ingatlan adatai
Irányár: 65 000 000 Ft
Típus: ház
Kategória: eladó
Alapterület: 182 m2
Fűtés: gáz (cirko)
Állapota: felújított
Szobák száma: 6
Építés éve: 1985
Szintek száma: 2
Részletes leírás
Kizárólag az OTP Ingatlanpont kínálatában!

Tágas családi ház Füzesabony szívében, kiváló elhelyezkedéssel!

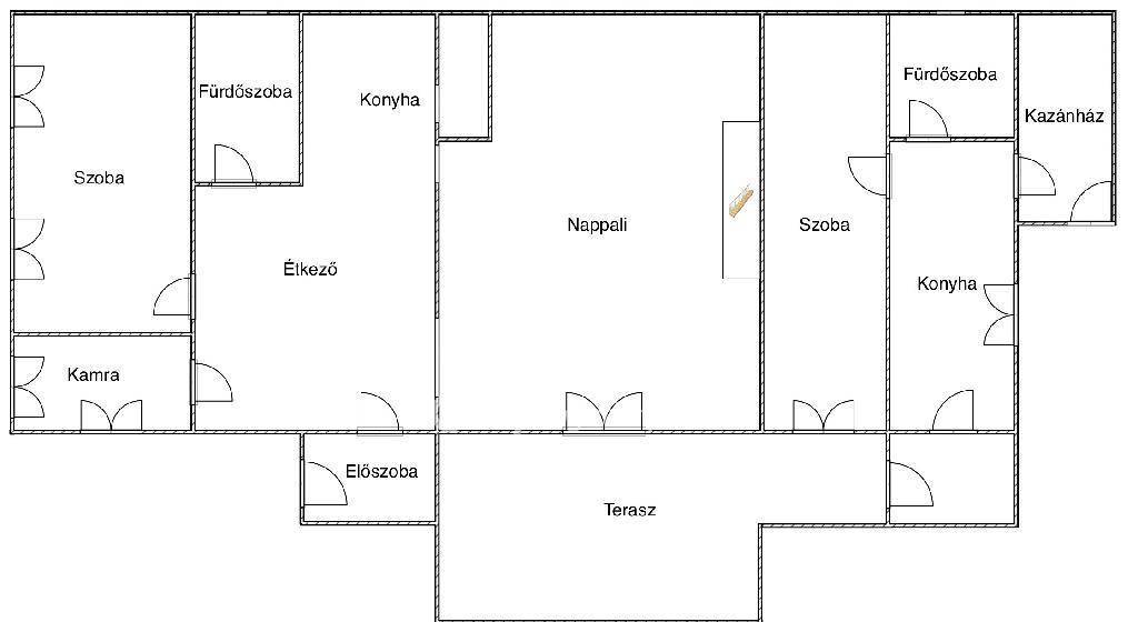
Eladó Heves megye, Füzesabonyban egy impozáns, 182m2-es, 2 szintes családi ház, amely minden igényt kielégít! Az ingatlan 784 m2-es telken helyezkedik el, kő és tégla szerkezetű, stabil, masszív építésű. A házban 6 hálószoba, egy tágas nappali, valamint 2 fürdőszoba biztosít kényelmes életteret akár nagycsaládosoknak, akár két generáció együttélésére is.

Az ingatlan különlegessége, hogy egy külön bejáratú lakrész is tartozik hozzá, amely remek lehetőséget nyújt vendégek fogadására, bérbeadásra vagy akár otthoni vállalkozás indítására.

Az otthon melegéről gázkazán gondoskodik, a villanyhálózat a kornak megfelelő állapotú. A település központjában található ház pár perc sétára van az orvosi rendelőtől, óvodától, iskolától, gyógyszertártól, élelmiszerüzlettől és vasútállomástól minden, amire szüksége lehet, könnyen elérhető!

Ez a ház tökéletes választás azok számára, akik tágas otthont keresnek remek elhelyezkedéssel! Ne hagyja ki, hívjon még ma, és tekintse meg személyesen

Ingatlanirodánk teljes körű ügyintézéssel, ügyvédi háttérrel, CSOK-, babaváró hitel- és kedvezményes hitelügyintézéssel, segíti ügyfeleit a gyors és zökkenőmentes vásárlás érdekében.
További adatok
Telekterület: 784 m2
Kert mérete: -
Erkély mérete: -
Felszereltség: -
Parkolás: lakáshoz van kültéri parkoló
Kilátás: -
Egyéb extrák:  
Hirdető adatai
Hirdető neve: otpip.hu - Eger Kertész utca 84 - OTP Ingatlanpont Iroda
Kapcsolattartó: Lukácsné Petró Sarolta Márta
Hirdető telefonszáma: +36-70-282-0802
Honlap: -
 
Üzenetet küldhet a hirdetőnek, árajánlatot tehet az ingatlanra:
Az Ön neve:
Az Ön e-mail címe:
Üzenet: