Ingatlan Televízió
Ingatlan Televízió
további hirdetések
adatlap bezárása

Ádánd 
 

Hivatkozási szám: 5841178
Ingatlan adatai
Irányár: 44 900 000 Ft
Típus: ház
Kategória: eladó
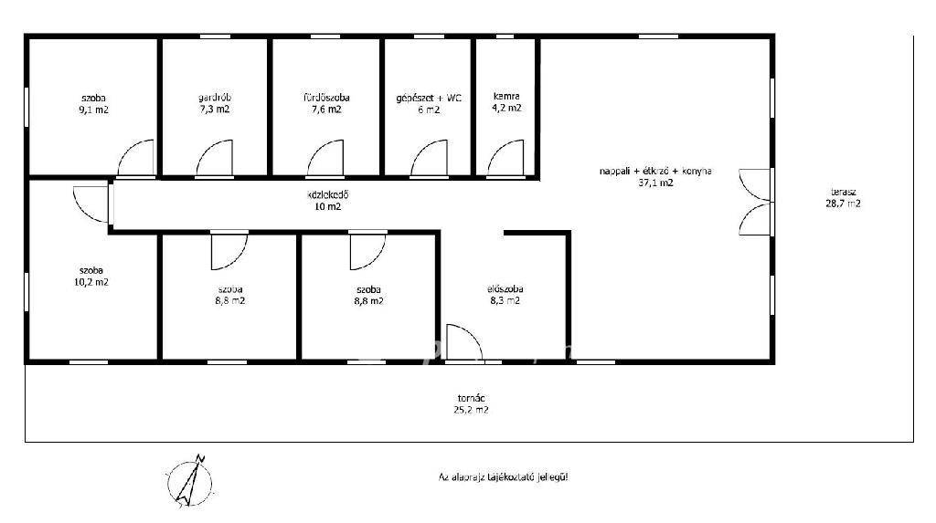
Alapterület: 144 m2
Fűtés: elektromos
Állapota: új
Szobák száma: 5
Építés éve: 2025
Szintek száma: 1
Részletes leírás
Somogy megye, Ádánd, 144 m2 családi ház, 6.556 m2 telek eladó. Az ingatlan a település központjához közel, csendes, nyugodt környezetben helyezkedik el. A letisztult, jó elosztású családi ház hatályos építési engedéllyel rendelkezik, az építési munkálatok befejezése azonban az új tulajdonos igénye szerint alakítható. Tervmódosítással, a tetőtér beépítésével akár további 80 m2-rel növelhető a hasznos alapterület. Az energiatakarékosra tervezett, Terran betoncseréppel fedett, 3 rétegű nyílászárókkal ellátott, szigetelt könnyűszerkezetes ház áramellátását napelem rendszer biztosítja. Az elektromos fűtésen kívül lehetőség van fatüzelésű kandalló beépítésére is, amit a nappaliban kiépített kémény tesz lehetővé. A nagyobb családok számára ideális lakóház a bővítési lehetőségek miatt több generációs családoknak, illetve a Balaton közelsége miatt nyaralásra vagy befektetési céllal kiadásra is kiváló választás. Az ingatlan értékét tovább növeli a hatalmas, gazdálkodásra alkalmas telek. Óvoda, iskola, orvosi rendelő könnyen elérhető, Siófok Balaton-part 14 km távolságra van. Bővebb információért keressen telefonon!

Referencia szám: M315884
További adatok
Telekterület: 6 556 m2
Kert mérete: -
Erkély mérete: 29 m2
Felszereltség: -
Parkolás: lakáshoz van kültéri parkoló
Kilátás: -
Egyéb extrák:  
Hirdető adatai
Hirdető neve: otpip.hu - Siófok Sió utca 10 - OTP Ingatlanpont Iroda
Kapcsolattartó: Zsitnyányi Ágnes
Hirdető telefonszáma: +36-70-316-3864
Honlap: -
 
Üzenetet küldhet a hirdetőnek, árajánlatot tehet az ingatlanra:
Az Ön neve:
Az Ön e-mail címe:
Üzenet: