Ingatlan Televízió
Ingatlan Televízió
további hirdetések
adatlap bezárása

Budapest, XXII.kerület 
 

Hivatkozási szám: 5840978
Ingatlan adatai
Irányár: 219 000 000 Ft
Típus: ház
Kategória: eladó
Alapterület: 137 m2
Fűtés: gáz (cirko)
Állapota: felújított
Szobák száma: 6+1
Építés éve: 1930
Szintek száma: 1
Részletes leírás
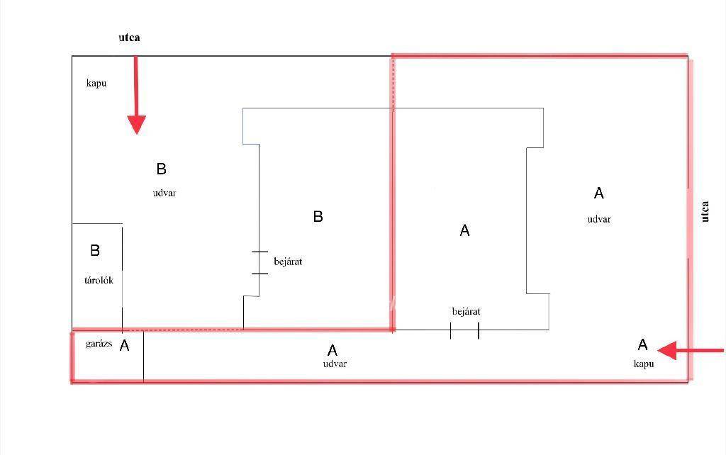
XII. Kerületben, BUDAFOKON, csendes, KERTVÁROSI KÖRNYEZETBEN eladó egy FRISSEN FELÚJÍTOTT 2 lakásos családi ház 635 m2 telekterülettel.
A két lakrész egymástól teljesen elkülönülten, külön utcai bejárattal közelíthető meg. ÖNÁLLÓ KÖZMŰÓRÁKKAL rendelkeznek.
A lakás: 65 m2, nappali + 2 hálószobás B: lakás: 72 m2, nappali + 3 hálószobás + 17 m2 terasz. Mindkét lakásban beépített konyhabútor, gépesítés ( Bosch mosogatógép, Gorenje sütő és főzőlap). A felújítás során megújultak az elektromos vezetékek, a teljes vízhálózat, a burkolatok, a szaniterek, új 3 rétegű műanyag nyílászárók kerültek beépítésre. A fűtést és a melegvíz ellátást új Ariston kondenzációs gázkazán biztosítja, radiátoros hő-leadással, mindkét lakásban külön-külön. A kellemes hőmérsékletről kiegészítésképpen klíma gondoskodik. A ház 10 cm hőszigeteléssel ellátott, a tető cseréppel fedett.
Tehermentes, AZONNAL BIRTOKBA VEHETŐ INGATLAN! A lakásokat külön -külön is értékesítjük.
Megtekintéssel kapcsolatban kérem keressen!
Illyés Margit 0670-377-3343

Referencia szám: M315578
További adatok
Telekterület: 635 m2
Kert mérete: -
Erkély mérete: -
Felszereltség: -
Parkolás: lakáshoz van kültéri parkoló
Kilátás: -
Egyéb extrák:  
Hirdető adatai
Hirdető neve: otpip.hu - Budapest IV. kerület József Attila utca 94-100 - OTP Ingatlanpont Iroda
Kapcsolattartó: Illyés Margit
Hirdető telefonszáma: +36-70-377-3343
Honlap: -
 
Üzenetet küldhet a hirdetőnek, árajánlatot tehet az ingatlanra:
Az Ön neve:
Az Ön e-mail címe:
Üzenet: