Ingatlan Televízió
Ingatlan Televízió
további hirdetések
adatlap bezárása

Szerencs 
 

Hivatkozási szám: 5840748
Ingatlan adatai
Irányár: 49 500 000 Ft
Típus: ház
Kategória: eladó
Alapterület: 188 m2
Fűtés: egyéb
Állapota: felújított
Szobák száma: 5
Építés éve: 1975
Szintek száma: 2
Részletes leírás
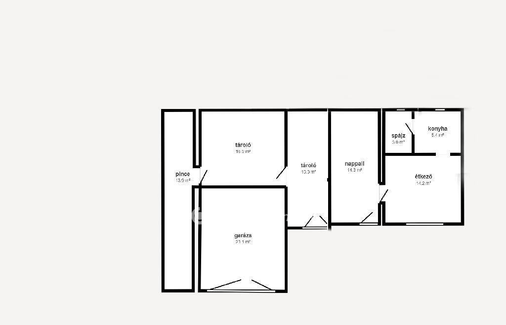
Szerencs Ond felőli részén, eladó egy 188 nm hasznos lakótérrel rendelkező, összesen 5 szobás, dupla komfortos, vegyes falazatú családi ház.
Az épület két lakrésszel rendelkezik, melyek jelenleg külön vannak használva, de könnyedén összenyithatóak.
A víz és a villanyhálózat közös, míg a fűtés külön üzemel.
Mindkét fűtési rendszer új vegyestüzelésű kazánt kapott az el elmúlt pár évben. A hőleadók radiátorok. A melegvízellátásról bojler gondoskodik.
Tetőszerkezete jó állapotú, statikailag kiváló.
Az épület lakható ( most is lakott) , de igény szerint felújítandó.
A szuterén szinten garázsok és tárolók találhatóak, melyek egyikéből nyílik egy kis borospince.
Összesen 3 zárható garázs és egy fedett kocsibeálló áll rendelkezésre.
A 782 nm es telken a főépület mögött további tárolók kaptak helyet. A porta hátsó fele füvesített illetve egy-egy sor csemege szőlő és egy két gyümölcsfa található.
Kiváló lehetőség befektetők, nagycsaládosok részére egyaránt. OTTHON START HITEL-re alkalmas!
OTP hátterünkkel díjmentes-, soron kívüli ügyintézést biztosítunk ügyfeleink számára. (OTTHONSTART HITEL 3%, FALUSI CSOK, CSOKPLUSZ, BABAVÁRÓ, JELZÁLOGHITEL, SZEMÉLYI KÖLCSÖN) Referenciaszám: M311274
További adatok
Telekterület: 782 m2
Kert mérete: -
Erkély mérete: -
Felszereltség: -
Parkolás: garázs
Kilátás: -
Egyéb extrák:  
Hirdető adatai
Hirdető neve: otpip.hu - Miskolc Szemere Bertalan utca 20 - OTP Ingatlanpont Iroda
Kapcsolattartó: Klubert Gergő
Hirdető telefonszáma: +36-70-907-0598
Honlap: -
 
Üzenetet küldhet a hirdetőnek, árajánlatot tehet az ingatlanra:
Az Ön neve:
Az Ön e-mail címe:
Üzenet: