Ingatlan Televízió
Ingatlan Televízió
további hirdetések
adatlap bezárása

Budapest, II.kerület 
 

Hivatkozási szám: 5840351
Ingatlan adatai
Irányár: 990 000 000 Ft
Típus: ház
Kategória: eladó
Alapterület: 1 194 m2
Fűtés: -
Állapota: -
Szobák száma: 10
Építés éve: 2008
Szintek száma: -
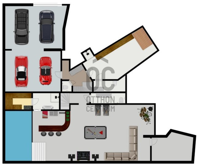
Részletes leírás
Kivételes lehetőség családosok számára, a 2/A kerület TOP ingatlana!
Budapest 02/A kerületének csendes, kertvárosi részén, Adyligetben eladó egy lenyűgöző, prémium kivitelezésű, 10 hálószobás luxusvilla, amely ideális otthona lehet egy nagyobb családnak vagy akár befektetési célokra is tökéletes választás. Az ingatlan alapterülete 1194 nm, míg a telek mérete 2000 nm, így bőséges teret biztosít a kényelmes életvitelhez. Az ingatlan 2 ikerházzá is osztható igény szerint, több filmforgatás helyszíneként is ismert.

További jellemzők:
- fantasztikus örökpanoráma
- hőszivattyú, H tarifa
- luxus minőségű külső és belső burkolatok
- 3 fűtött medence
- 2 tágas szauna
- partyszoba
- külön bejáratú személyzeti lakás

A ház kiváló, azonnal költözhető állapotban várja új lakóit, modern hőszivattyús fűtéssel és klímával felszerelve, hogy az év minden szakaszában kellemes hőmérsékletet biztosítson. Az ingatlan belső tereit tágas terek uralják, ideális helyszín a családi összejövetelekhez és reprezentáláshoz. Az ingatlan elegáns stílusú kialakítása, a beépített bútorok és szekrények, valamint a LED hangulatvilágítás \\\" old money\\\" eleganciát és stílust kölcsönöznek a tereknek. A házban található 10 fürdőszoba garantálja a kényelmet és a magánszférát minden családtag számára.

A bentlakó személyzet a külön bejáratú, intim 75 nm es felszerelt, két szobával rendelkező lakrész kényelmét élvezheti.

A lenyűgöző kertben az automata öntözőrendszer folyamatosan biztosítja a növények életerejét, az elvehetetlen panoráma pedig exkluzív látványt nyújt minden irányból. A szabadidő eltöltésére a szaunák, partyhelyiség és a jakuzzi nyújt lehetőséget, míg a kül- és beltéri medencék a nyári hónapokban garantáltan felüdítenek.

A környék biztonságos és csendes, ideális a családok számára, akik a város zajától távol, mégis könnyen megközelíthető helyen keresnek otthont. Nemzetközi iskolák megtalálhatóak a környéken. A közlekedés kiváló, hiszen a közelben található tömegközlekedési lehetőségek gyors és kényelmes eljutást biztosítanak Budapest belvárosába. Az autós közlekedés is egyszerű, a főbb közlekedési útvonalak könnyen elérhetők, a városközpontba 10-15 perc alatt eljuthatunk.

Ez az ingatlan nem csupán egy otthon, hanem egy életstílus megtestesítője, amely egyedi tervezésével és exkluzív megoldásaival minden igényt kielégít. A biztonsági ajtó és a riasztórendszer maximális védelmet nyújt, míg a videókaputelefon és a videós biztonsági rendszer a modern technológia kényelmét biztosítja. Amennyiben érdeklik a részletek, vagy kérdései merülnének fel ezzel az egyedülálló ingatlannal kapcsolatban, kérem, ne habozzon! Bizalommal kereshet bármilyen információval, és örömmel állok rendelkezésére, hogy segítsek Önnek megtalálni álmai otthonát.
További adatok
Telekterület: 2 000 m2
Kert mérete: 2 000 m2
Erkély mérete: -
Felszereltség: -
Parkolás: -
Kilátás: -
Egyéb extrák:  
Hirdető adatai
Hirdető neve: Otthon Centrum
Kapcsolattartó: Radnai Orsolya
Hirdető telefonszáma: +36 70 388 5711
Honlap: -
 
Üzenetet küldhet a hirdetőnek, árajánlatot tehet az ingatlanra:
Az Ön neve:
Az Ön e-mail címe:
Üzenet: