Ingatlan Televízió
Ingatlan Televízió
további hirdetések
adatlap bezárása

Diósd 
 

Hivatkozási szám: 5840081
Ingatlan adatai
Irányár: 134 890 000 Ft
Típus: ház
Kategória: eladó
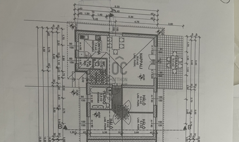
Alapterület: 81 m2
Fűtés: gáz (cirko)
Állapota: -
Szobák száma: 4
Építés éve: 2019
Szintek száma: -
Részletes leírás
Egy kivételes lehetőséget kínálunk Önnek Diósd szívében, ahol a családosok számára ideális otthonra lelhetnek.
Ez a modern, használt ház brutto 99 négyzetméteres alapterületével és 321 négyzetméteres telkével tökéletes választás mindazok számára, akik a város zajától távol, de mégis központi elhelyezkedésben szeretnének élni.
Az ingatlanban 3 szoba található plusz nappali, a nappali különösen világos és barátságos, köszönhetően a nagy ablakoknak és a minimalista kialakításnak.
Az amerikai konyha és a kandalló egyedi hangulatot kölcsönöz a térnek, ahol a családi összejövetelek és baráti találkozók felejthetetlen élményeket nyújtanak.
A házhoz tartozó 36 négyzetméteres terasz ideális helyszín a pihenésre és a szabadban eltöltött időre.
Az ingatlan állapota jó, a fűtés gáz cirkóval megoldott, míg a hűtésről klíma gondoskodik, így a nyári melegben is kellemes hőmérséklet várja a lakókat.
Az ingatlanban beépített bútorok és szekrények is találhatóak, amelyek praktikus tárolási megoldásokat kínálnak.
A modern LED hangulatvilágítás és a redőnyök pedig a kényelmet és az exkluzív megjelenést szolgálják.
A környék ellátottsága kiváló, a közlekedési csomópont közelsége miatt a közlekedés kitűnő, így a főváros könnyedén elérhető.
Diósd csendes, kertvárosi lakásai között található ez a gyöngyszem, amely rendezett kerttel és automata öntözőrendszerrel büszkélkedhet, ideális helyszínt biztosítva a gyermekek számára a szabadban való játékhoz.
A biztonságot riasztórendszer is garantálja, így Ön nyugodtan élvezheti otthona kényelmét.
Ez a felkapott környék nemcsak a családok, hanem a befektetők számára is vonzó lehetőségeket kínál.
Az ingatlan elhelyezkedése miatt a jövőbeli értéknövekedés garantált, így érdemes mihamarabb lépni.
Kérjük, ne habozzon, keressen bizalommal bármilyen kérdésével vagy időpont egyeztetéssel kapcsolatban.
Az Ön álmai otthona már csak egy telefonhívásnyira van!
További adatok
Telekterület: 321 m2
Kert mérete: 321 m2
Erkély mérete: 36 m2
Felszereltség: -
Parkolás: -
Kilátás: -
Egyéb extrák:  
Hirdető adatai
Hirdető neve: Otthon Centrum
Kapcsolattartó: Lelkes Ágnes
Hirdető telefonszáma: +36 70 412 3716
Honlap: -
 
Üzenetet küldhet a hirdetőnek, árajánlatot tehet az ingatlanra:
Az Ön neve:
Az Ön e-mail címe:
Üzenet: