Ingatlan Televízió
Ingatlan Televízió
további hirdetések
adatlap bezárása

Tatabánya 
 

Hivatkozási szám: 5840049
Ingatlan adatai
Irányár: 1 380 000 000 Ft
Típus: kereskedelmi/ipari ingatlan
Kategória: eladó
Alapterület: 11 042 m2
Fűtés: -
Állapota: -
Szobák száma: -
Építés éve: -
Szintek száma: -
Részletes leírás
Tatabánya belterületi részén a Kormányablak közvetlen közelében kínálok eladásra egy 2.7 hektáros telekterülettel rendelkező ipari csarnok együttest!

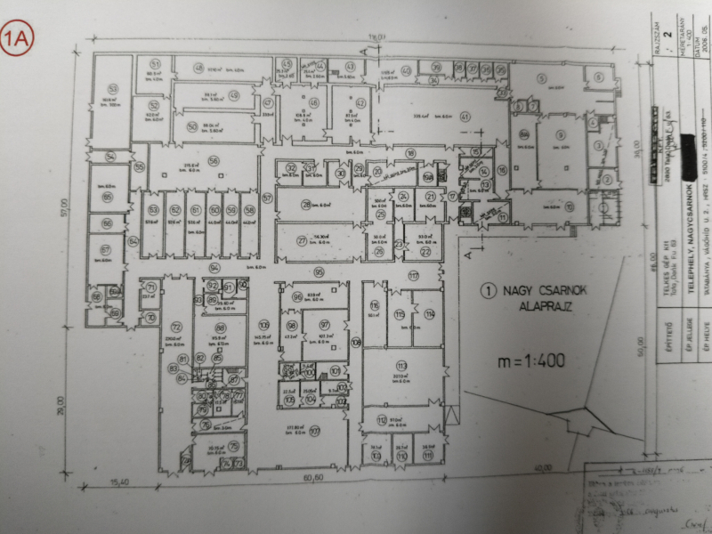
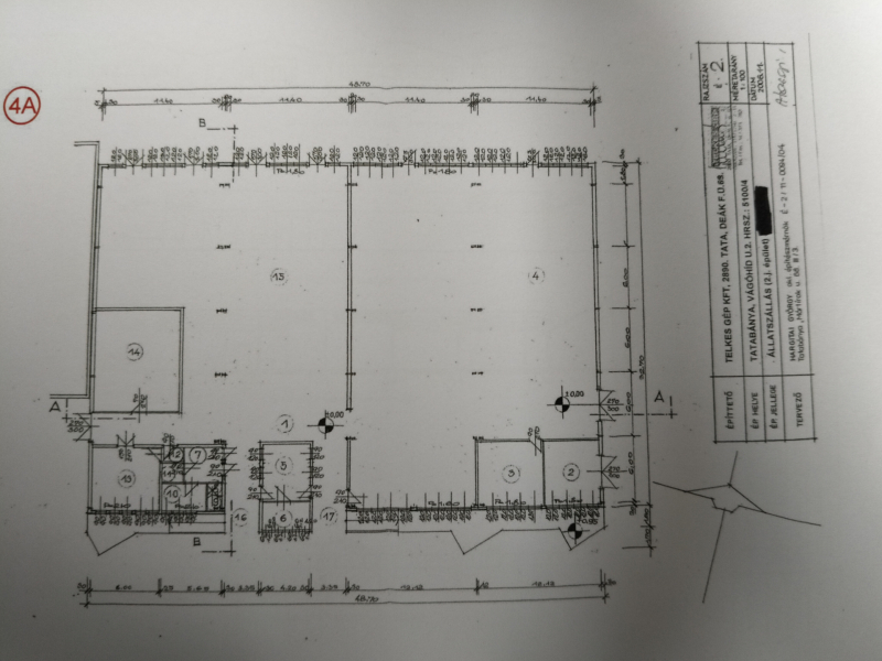
Az ingatlan 7 épület egységből tevődik össze amelyek teljes hasznos alapterülete 11 042 m2. A főépületben kerültek kialakításra az irodák c.a 140 m2 amely tartalmazza a mosdók és étkezőket is. Az irodahelyiségek gázkazánnal fűtöttek és jó állapotúak.

6 ipari csarnok áll rendelkezésre, amelyeken belül további helyiségek kerületek kialakításra. (alaprajzok a mellékelt fotók közt tanulmányozhatóak). Az épületek átlag magassága 6 méter. Az ipari komplexumnak 2 bejárata van így egyirányú a forgalom a területen.

Jelenleg gép kereskedelmi ipari tevékenység folyik az ingatlanban. A cég és annak üzleti tevékenysége is megvásárolható igény esetén. Egy 32 éve működő, jól bejáratott, széles kapcsolati rendszerrel rendelkező vállalkozásról van szó aminek az ára további 500 Millió Ft amennyiben valaki igényt tart rá és a teljes knowhow és ügyfélkör jár vele!
A cég kapcsolatban áll olyan gyáróriásokkal, mint a Samsung vagy a Siemens stb. és az általuk üzemen kívül helyezett gépeket szerelik le és veszik át, amelyeket később értékesítenek a világ minden pontján. Rengeteg eladási referenciával rendelkeznek minden kontinensen. Hatalmas potenciál van ebben a vállalkozásban és akár tovább bővíthető és fejleszthető!
A jelenlegi tulajdonos azért válik meg a cégtől és az ingatlantól, mert nyugdíjba vonul.

Amennyiben valaki csak az ingatlanra tart igényt ebben az esetben fontos kiemelni az elhelyezkedést. A környéken van Tesco, Aldi, Lidl, Müller és a nem rég megújult Diego üzlet csarnoka a közvetlen szomszédban. Jól fejlődő és működő része ez tatabányának.

Ipari tevékenységre tökéletes adottságokkal rendelkező terület:
Építési övezete: GIP-4 (Gazdasági-ipari övezet)
Beépíthetősége: 50%
Maximális épület magasság: 12.5 méter
Telek pontos területe: 26 768 m2 + 816 m2 használati jog. összesen: 27 584 m2
A terület 90%-ban aszfaltozott/betonozott
Teljes közmű bent van: víz, villany, csatorna, gáz
Villamos energia teljesítmény: 600 kVA

Potenciális felhasználás:
- ipari tevékenység
- műhely
- gyártás
- kereskedelem
- raktározás

Legyen Ön az, aki javait szedi egy virágzó vállalkozásnak vagy aki, új célt ad egy ilyen gigászi ipari ingatlannak!

Minden további részletes információért és személyes megtekintés időpont egyeztetésért engem hívjon telefonon vagy lépjen kapcsolatba emailben.
További adatok
Telekterület: -
Kert mérete: -
Erkély mérete: -
Felszereltség: -
Parkolás: -
Kilátás: -
Egyéb extrák:  
Hirdető adatai
Hirdető neve: Otthon Centrum
Kapcsolattartó: Benkő Szilamér
Hirdető telefonszáma: +36 70 469 3651
Honlap: -
 
Üzenetet küldhet a hirdetőnek, árajánlatot tehet az ingatlanra:
Az Ön neve:
Az Ön e-mail címe:
Üzenet: