Ingatlan Televízió
Ingatlan Televízió
további hirdetések
adatlap bezárása

Gárdony 
 

Hivatkozási szám: 5839709
Ingatlan adatai
Irányár: 35 000 000 Ft
Típus: ház
Kategória: eladó
Alapterület: 98 m2
Fűtés: egyéb
Állapota: felújítást igényel
Szobák száma: 3
Építés éve: 1950
Szintek száma: 1
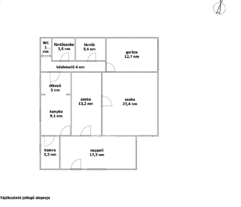
Részletes leírás
Fejér megye, Gárdony, Dinnyés településen 98 nm-es családi ház eladó. A felújítandó vagy bontandó lakóingatlan egy 1452-es telken helyezkedik el közel a vasútállomáshoz. A tehermentes házban nappali, 2 szoba, konyha, étkező, kamra, fürdőszoba, külön WC és tároló található, valamint tartozik hozzá 12,7 nm-es garázs, 8 nm-es pince és egy 23 nm-es melléképület. Az épület falazata vályog és részben tégla. A közművek közül a víz, villany és a csatorna bevezetve a házba, gáz nincsen. A fűtésről vegyes tüzelésű kazán gondoskodik. A vasútállomás, buszmegálló, bolt séta távolságra találhatóak. Az ingatlanban rengeteg lehetőség rejlik, több szoba kialakítható, ráfordítással egy hangulatos családi házat alakíthat ki a Velencei tó közelében. Teljes körű ügyintézésben segítjük ügyfeleinket díjtalanul: Falusi CSOK, CSOK igénylése, kedvezményes hitel mobil bankári szolgáltatással, adásvétel teljes lebonyolításával. Bővebb információkért, kérem keressen bizalommal, akár hétvégén is.
További adatok
Telekterület: 1 452 m2
Kert mérete: -
Erkély mérete: -
Felszereltség: -
Parkolás: lakáshoz van kültéri parkoló
Kilátás: -
Egyéb extrák:  
Hirdető adatai
Hirdető neve: otpip.hu - Székesfehérvár Palotai út 8 - OTP Ingatlanpont Iroda
Kapcsolattartó: Darnai Henrietta
Hirdető telefonszáma: +36-20-487-4399
Honlap: -
 
Üzenetet küldhet a hirdetőnek, árajánlatot tehet az ingatlanra:
Az Ön neve:
Az Ön e-mail címe:
Üzenet: