Ingatlan Televízió
Ingatlan Televízió
további hirdetések
adatlap bezárása

Szentes 
 

Hivatkozási szám: 5839361
Ingatlan adatai
Irányár: 49 000 000 Ft
Típus: ház
Kategória: eladó
Alapterület: 146 m2
Fűtés: gáz (konvektor)
Állapota: felújított
Szobák száma: 3+1
Építés éve: 1925
Szintek száma: 1
Részletes leírás
Kizárólag az OTP Ingatlanpont kínálatában!
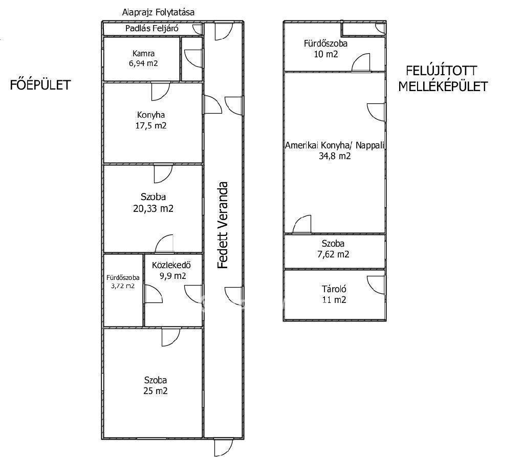
Eladásra kínálom Csongrád-Csanád vármegyében, Szentesen 705 m2-es telken lévő 83 m2-es fő épületben lévő 2 szoba, konyha, kamra fürdőszobás ingatlant, ami egy telken van egy 52 m2-es felújított szoba, fürdőszoba, amerikai konyha nappalis házzal. A fő épület meg felel az Otthon Start Hitelprogram feltételeinek. Az ingatlan korszerűsítést igényel, de szükség esetén állapota akár költözhető is lehet, a kisebb épületben be kell fejezni a felújításokat csak úgy költözhető. Tetőszerkezet megfelelő állapotban van. Nagy épületben gázkonvektoros fűtés van, kisebb épületben majd légkondicionálós fűtési lehetőség lesz.
Ne feledje, az OTP Ingatlanpont kedvezményes pénzügyi konstrukciókkal áll ügyfelei rendelkezésére! VIP-szolgáltatást nyújtunk az OTP-hiteltermékek ügyintézésében. Jogi és pénzügyi segítséget nyújtanak szakértőink, hogy az adásvétel folyamata gördülékeny legyen. Amennyiben a vételár a kérdés, és úgy gondolja még nincs meg az összeg a leendő új otthonra, lehet hogy még is rendelkezésére áll a vételár csak még Ön nem is tudja? Tisztában van valóban az anyagi lehetőségeivel? Az áthidaló megoldásokkal? Esetleg csak az az akadály, hogy nem adta el még a saját ingatlanját? Nem gond, a tulajdonosaink, eladóink szívesen megvárják Önt, segítünk a gyors értékesítésben is. Ne maradjon le a vételről, ha már megtalálta a megfelelő új otthont! Szolgáltatásunk ingyenes, kizárólag sikeres értékesítés esetén van megbízási díj fizetési kötelezettség. A vevők is nálunk vannak és lehet az Ön ingatlanjára várnak?! Tudjon meg többet, hívjon bizalommal!
Eladó ingatlanja van? Nincs vevője? Hívjon segítek az értékesítésben!

Referencia szám: M313402-ITV
További adatok
Telekterület: 705 m2
Kert mérete: -
Erkély mérete: -
Felszereltség: -
Parkolás: lakáshoz van kültéri parkoló
Kilátás: -
Egyéb extrák:  
Hirdető adatai
Hirdető neve: otpip.hu - Szentes Petőfi utca 12 - OTP Ingatlanpont Iroda
Kapcsolattartó: Arnoth-Kuczora Eszter
Hirdető telefonszáma: +36-30-472-6467
Honlap: -
 
Üzenetet küldhet a hirdetőnek, árajánlatot tehet az ingatlanra:
Az Ön neve:
Az Ön e-mail címe:
Üzenet: