Ingatlan Televízió
Ingatlan Televízió
további hirdetések
adatlap bezárása

Csongrád 
 

Hivatkozási szám: 5839358
Ingatlan adatai
Irányár: 12 000 000 Ft
Típus: ház
Kategória: eladó
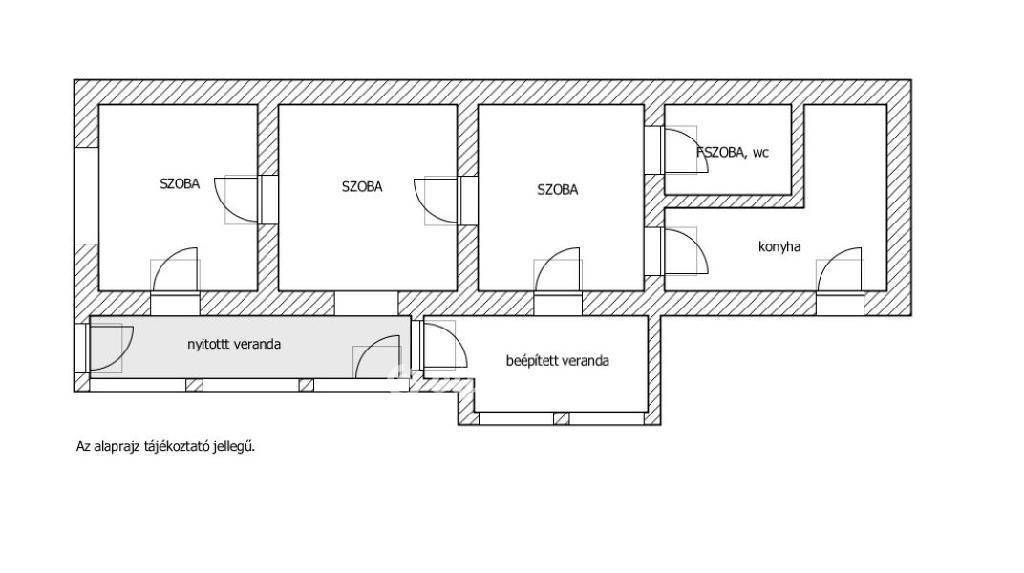
Alapterület: 86 m2
Fűtés: egyéb
Állapota: felújítást igényel
Szobák száma: 3
Építés éve: 1935
Szintek száma: 1
Részletes leírás
Csak az OTP Ingatlanpont kínálatában!
Csongrád központhoz közeli csendes utcájában eladó, egy jó szerkezetű, felújítandó családi ház!
Az ingatlan kiváló lokációval rendelkezik. Az 559m2-es telken egy vegyes falazatú, felújításra szoruló lakóépület található. A 86m2 hasznos alapterületű házban 4 nagyobb helyiség, egy fürdőszoba, valamint egy nyitott és egy beépített veranda kapott helyet.
Villany, víz, csatorna közművel rendelkezik, a gáz a telken belül van, de gázóra jelenleg nincs.
A villanyhálózat részleges felújításon esett át, befejezésre vár.
A szobák betonosak.
Az ingatlan per, teher, és igénymentes.
Amennyiben felkeltettem érdeklődését, hívjon bizalommal!
Az OTP Ingatlanpont teljeskörű ügyintézéssel áll az eladók és vevők rendelkezésére. A kínálatunkból választott ingatlan finanszírozásához kedvezményes hitelkonstrukciót biztosítunk. Az OTP Banknál elérhető Babaváró, Otthon Start Hitelprogram, falusi CSOK, CSOK Plusz hitel és egyéb kölcsönök intézését díjmentesen vállaljuk. Az adásvételi szerződés megkötéséhez igény szerint ügyvédet biztosítunk. Irodáink Szentes, Petőfi utca 12. a buszmegálló felől, és Csongrád, Fő utca 54. szám alatt várjuk a személyes érdeklődőket. Válasszuk ki együtt az Önnek legmegfelelőbb ajánlatot banki sorban állás nélkül!

Referencia szám: M313890-ITV
További adatok
Telekterület: 559 m2
Kert mérete: -
Erkély mérete: -
Felszereltség: -
Parkolás: lakáshoz van kültéri parkoló
Kilátás: -
Egyéb extrák:  
Hirdető adatai
Hirdető neve: otpip.hu - Szentes Petőfi utca 12 - OTP Ingatlanpont Iroda
Kapcsolattartó: Dr. Szabados Éva
Hirdető telefonszáma: +36-30-309-5252
Honlap: -
 
Üzenetet küldhet a hirdetőnek, árajánlatot tehet az ingatlanra:
Az Ön neve:
Az Ön e-mail címe:
Üzenet: