Ingatlan Televízió
Ingatlan Televízió
további hirdetések
adatlap bezárása

Budapest, VII.kerület 
 

Hivatkozási szám: 5838702
Ingatlan adatai
Irányár: 1 270 000 Ft
Típus: kereskedelmi/ipari ingatlan
Kategória: kiadó
Alapterület: 97 m2
Fűtés: -
Állapota: -
Szobák száma: -
Építés éve: 2014
Szintek száma: -
Részletes leírás
Széles utcafronttal rendelkező, üvegportálos, belső kétszintes üzlethelyiség keresi új bérlőjét a VII. kerületben, a Városliget mellett. Ha olyan tágas és világos üzletet keres vállalkozása számára, ami modern épületben és frekventált helyen van, akkor ezt feltétlenül nézze meg!

LOKÁCIÓ ÉS KÖZLEKEDÉS:
- VII. kerület, Külső-Erzsébetváros.
- Kiváló tömegközlekedési kapcsolatok és teljes infrastruktúra a közelben.
- A Garay Center 250 méter.
- A Városliget 400 méter.
- A Récsei Center 10 perc gyalog.
- A Puskás Aréna 15 perc gyalog.
- 300 méter sugarú körön belül több autóbusz és troli megállója elérhető.
- Közvetlen közelben üzletek, szolgáltatók, kulturális látnivalók, vendéglátóhelyek.

AZ ÉPÜLET:
- 2014-ben átadott, földszint + 6 emeletes, jó állapotú, tégla építésű társasház.
- Az épület külső-belső homlokzata kifejezetten jó állapotú.
- Az épület előtt 2 db, rakodásra fenntartott hely áll rendelkezésre.
- Parkolás utcán lehetséges, fizetős övezetben.

AZ ÜZLETHELYISÉG:
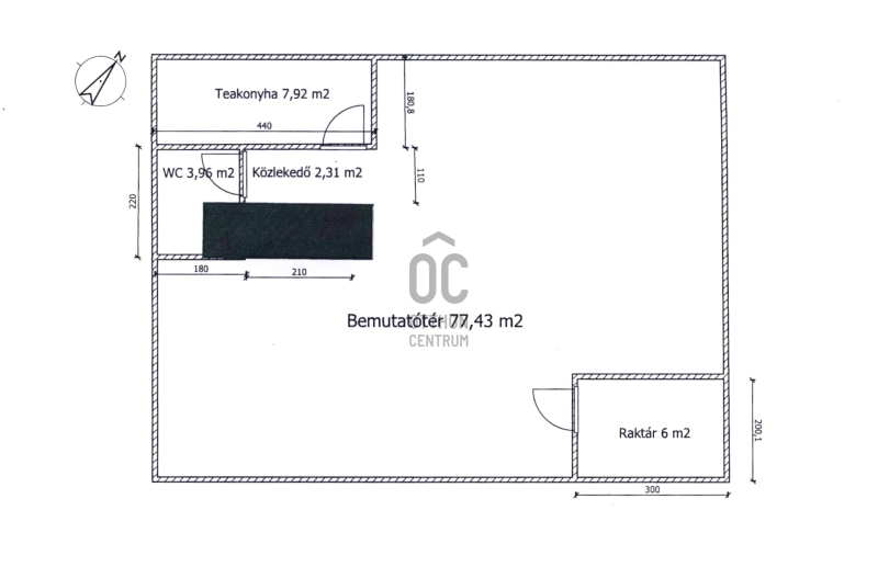
- Földszinti, belső kétszintes, nagy üvegportállal rendelkező ingatlan.
- Alsó szintje 97 m2-es és rendelkezik egy 48 m2 alapterületű, teljes értékű állógalériával.
- Azonnal használható állapotban van, jelenleg bemutatóteremként üzemel.
- Kiváló az alaprajza, tágas és világos, jól kihasználható terekkel rendelkezik.
- Felosztása az alsó szinten: bemutatótér, teakonyha, raktár, WC-kézmosó.
- Felosztása a galérián: egy légterű iroda, tárgyaló, raktár.
- Fűtése és melegvíz ellátása házközponti, egyedi méréssel.
- Egyedi hűtés-fűtés is lehetséges saját hőszivattyúval.
- Nyílászárói fém szerkezetűek.
- Az üzlethelyiség riasztóval felszerelt.

EGYÉB INFORMÁCIÓK:
- Az ingatlant jelenleg a tulajdonos használja, 2026. január elejétől vehető birtokba.
- A tulajdonos hosszabb távra szeretné bérbe adni.
- Hasznosítás céljából kifejezetten alkalmas kisebb vállalkozásoknak, bemutatótermeknek, irodának, tárolásra.
- Erős szaggal és nagy zajjal járó tevékenységet nem lehet a társasházban folytatni.
- A tulajdonos cég, a bérleti díjról ÁFÁ-s számlát állít ki.
- A hirdetésben szereplő bérleti díj már az ÁFÁ-t is tartalmazza (1.000.000 Ft+ÁFA)
- 2 havi kaució szükséges (2.000.000 Ft + ÁFA).

Érdeklődés esetén kérem, hívjon bizalommal!
További adatok
Telekterület: -
Kert mérete: -
Erkély mérete: -
Felszereltség: -
Parkolás: -
Kilátás: -
Egyéb extrák:  
Hirdető adatai
Hirdető neve: Otthon Centrum
Kapcsolattartó: Toró Tímea
Hirdető telefonszáma: +36 70 412 3176
Honlap: -
 
Üzenetet küldhet a hirdetőnek, árajánlatot tehet az ingatlanra:
Az Ön neve:
Az Ön e-mail címe:
Üzenet: