Ingatlan Televízió
Ingatlan Televízió
további hirdetések
adatlap bezárása

Kőszegszerdahely 
 

Hivatkozási szám: 5838700
Ingatlan adatai
Irányár: 49 900 000 Ft
Típus: lakás (újépítésű)
Kategória: eladó
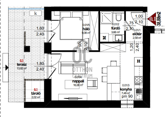
Alapterület: 47 m2
Fűtés: elektromos
Állapota: új
Szobák száma: 2
Építés éve: 2026
Szintek száma: -
Részletes leírás
Fedezze fel ezt a rendkívüli lehetőséget, amely tökéletes választás lehet középkorú családok, fiatal párok vagy befektetők számára! Kínálatunkban egy új, kiváló állapotú 47 négyzetméteres lakás található Kőszegszerdahelyen. A modern, prémium kivitelezésű ingatlan tágas nappalival, háló szobával és egy elegáns fürdőszobával rendelkezik, amely minden igényt kielégít. A lakás fűtése elektromos (infra) rendszerrel, míg a hűtésről klímaberendezés gondoskodik, így az év bármely időszakában kellemes hőmérsékletet biztosít. Az Inverteres hűtő/fűtő klíma , hővisszanyerős légcserélő gondoskodik a folyamatos jó minőségű levegőről.
Minimális rezsiköltség, hatékony és gyors, egyedi fűtésrendszer, nincsenek közös rezsiszámolások… A lakás különlegessége a 13,84 négyzetméteres terasz, amely közvetlen 51 nm kertkapcsolattal rendelkezik. Ez a zöld oázis ideális helyszínt biztosít a pihenéshez, baráti összejövetelekhez vagy akár egy nyugodt reggeli kávézáshoz. A LED hangulatvilágítás pedig még inkább fokozza a lakás hangulatát, lehetővé téve, hogy otthona mindig a legjobb fényben tündököljön. A környék csendes és biztonságos, ideális választás mindazok számára, akik szeretnék elkerülni a város zaját, miközben könnyen elérhetik a szükséges szolgáltatásokat. A közlekedési lehetőségek is kedvezőek: a közeli nagyvárosok és Ausztria autóval könnyen megközelíthető főbb utak révén. A közeli településeken található boltok, éttermek és szabadidős lehetőségek mind hozzájárulnak ahhoz, hogy az itt lakók mindennapjai kényelmesebbek és élvezetesebbek legyenek. Ez a tehermentes ingatlan nem csupán lakóhely, hanem egy életstílus megtestesítője. A hegyvidéki környezet és a modern megoldások tökéletes harmóniát alkotnak, így Ön is részese lehet ennek az élménynek. Ha bármilyen kérdése merülne fel, vagy szeretne többet megtudni erről a páratlan lehetőségről, bizalommal forduljon hozzánk. Az Ön elégedettsége a legfontosabb számunkra, és örömmel segítünk Önnek a legjobb döntés meghozatalában.
Projekt bemutatása

Modern megoldások, otthonos kényelem Kőszeg-hegyalján!
Kőszegszerdahelyen várja új tulajdonosait 21 lakásos, tégla építésű, szigetelt 2 szintes társasház. A hangulatos, természetközeli környezet, szub-alpoki klíma, Ausztria közelsége mind rendelkezésre áll az itt élők számára.
Az épület modern, letisztult stílusával és korszerű technológiájával a jövő otthonkeresőit célozza meg. Minden lakás:
- elektromos infra film padlófűtéssel rendelkezik, amely nemcsak kényelmes, de környezetbarát is.
- Fokozott szigetelést kapott a padozat, a födém, a lábazat és a homlokzat tekintetében, megfelelve a legszigorúbb szabványoknak.
- Háromrétegű, hő- és hangszigetelt nyílászárókkal van felszerelve.
-meleg víz ellátást hőszivattyús villanybojler biztosítja
- klíma, terasz minden lakásban
A vételár tartalmazza:
- szobákban laminált padló 5500 Ft/nm
wc: tervrajzok szerinti darabszámban 50.000 Ft/db
mosdószekrény mosdóval: Leziter Cube 60 (ár: 75.000.-)
Csap: mosdócsap 15.000 Ft/db
Zuhany/kádtöltő csap 25.000 Ft/db
Zuhanykabin / kád 150.000 Ft/db
- vizes helyiségekben vízálló laminált melegburkolat készül 7000 Ft/nm
• Egy saját parkolóhelyet.
• Kulcsrakész állapotot burkolatok, kapcsolók dugaljak, szaniterek, beltéri ajtók tartalmazzák.
A tárolást szintenként saját tároló segíti korlátozott számban.
További adatok
Telekterület: -
Kert mérete: -
Erkély mérete: 14 m2
Felszereltség: -
Parkolás: -
Kilátás: udvari
Egyéb extrák:  
Hirdető adatai
Hirdető neve: Otthon Centrum
Kapcsolattartó: Tóth Éva
Hirdető telefonszáma: +36 70 412 5241
Honlap: -
 
Üzenetet küldhet a hirdetőnek, árajánlatot tehet az ingatlanra:
Az Ön neve:
Az Ön e-mail címe:
Üzenet: