Ingatlan Televízió
Ingatlan Televízió
további hirdetések
adatlap bezárása

Miskolc 
 

Hivatkozási szám: 5838468
Ingatlan adatai
Irányár: 249 000 000 Ft
Típus: kereskedelmi/ipari ingatlan
Kategória: eladó
Alapterület: 662 m2
Fűtés: -
Állapota: -
Szobák száma: -
Építés éve: 2021
Szintek száma: -
Részletes leírás
MISKOLC, ÚJGYŐRI FŐTÉR, ÁRUHÁZ, PARKOLÓVAL ELADÓ!!!

Az ingatlan jellemzői:

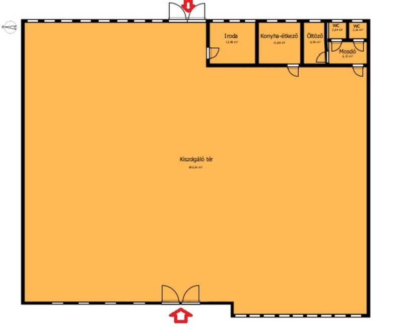
-2177 nm2-es telken helyezkedik el az acélvázas, 15cm-es szigetelt szendvicspanelből épült árucsarnok, melynek alapterülete 662m2
-kiváló minőségű anyagokból, szakszerűen lett kivitelezve
-műanyag, hőszigetelt ajtók, ablakok

- 28 parkoló található az udvaron, kamion behajtására is van lehetőség
- a biztonság érdekében riasztó, kamera rendszer, füst érzékelő beszerelve

-36 kw-os napelem rendszer, mely az energia szükségletet fedezi
-alacsony rezsi
-az épület hűtéséről, fűtéséről, 11 db 7,5kw-os, 2 db 3,5 kw-os klíma gondoskodik

-közművek: víz, villany(3x63A), szennyvíz
- gáz nincs az ingatlanban

-a belső térben egy iroda, irattár, teakonyha, öltöző, 2 db mosdó-wc található
- hátsó részen (keleti), a tető túlnyúlása miatt, fedett tároló (85m2)
- teljesen körülkerített az ingatlan (beton elem kerítés)
- a ki- és bejárat könnyen működő tolókapuval határolt (nem automatizált)
- a parkolóban elektromos autó töltő állomás kialakítható, az ehhez szükséges kábel beépítésre került
- azonnal használatba vehető, kereskedelmi tevékenységre alkalmas engedéllyel rendelkezik

Jöjjön, tekintse meg a helyszínen leendő vállalkozását!
Időpont egyeztetéssel rugalmasan tudom mutatni.

Irodánkban BANKFÜGGETLEN, INGYENES hitelügyintézésre van lehetőség.
Van eladó ingatlana? Bizza ránk, párhuzamosan a vásárlással!
További adatok
Telekterület: -
Kert mérete: -
Erkély mérete: -
Felszereltség: -
Parkolás: -
Kilátás: -
Egyéb extrák:  
Hirdető adatai
Hirdető neve: GDN Ingatlanhálózat
Kapcsolattartó: Tóth István
Hirdető telefonszáma: +36-70-609-9244
Honlap: -
 
Üzenetet küldhet a hirdetőnek, árajánlatot tehet az ingatlanra:
Az Ön neve:
Az Ön e-mail címe:
Üzenet: