Ingatlan Televízió
Ingatlan Televízió
további hirdetések
adatlap bezárása

Pécel 
 

Hivatkozási szám: 5838075
Ingatlan adatai
Irányár: 98 000 000 Ft
Típus: lakás (újépítésű)
Kategória: eladó
Alapterület: 101 m2
Fűtés: gáz (cirko)
Állapota: új
Szobák száma: 3+1
Építés éve: 2025
Szintek száma: -
Részletes leírás
CSAK NÁLUNK!

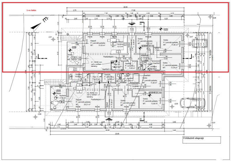
Pécel, kedvelt Levendulás lakóparkjában, eladó egy nettó 101,46 m², bruttó 110,56 m² alapterületű, 2 lakásos lakóépület 1-es lakása.

A lakásokat, aszfaltos úton lehet megközelíteni.

Az építkezés, várhatóan 2025 november közepén kezdődik.

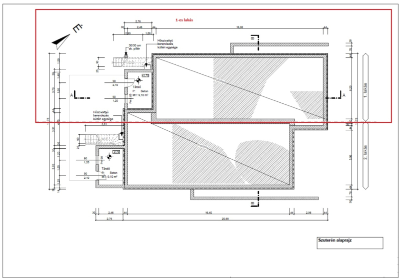
A 101,46 m²-es lakótérben 3 szoba + nappali szoba biztosít kényelmes életteret a jövőbeli lakóknak. A házhoz tartozik egy ~508 m²-es saját kert, ami tökéletes helyszín családi és baráti összejövetelekhez. A 11,28 m²-es teraszról ( alatta 9,1 m²-es tároló) gyönyörű kilátás nyílik a környező tájra.


A lakások szimmetrikus belső elrendezéssel kerültek megtervezésre, földszintes kialakítással, illetve részleges szuterén beépítéssel. A lakások az oldalkerti homlokzatok közepén lévő bejáratokon közelíthetők meg.

Rövid műszaki tartalom:

- Az épület földszinti és emeleti külső határoló falai 30 cm vastag Porotherm 30 X-Therm falazó blokkból, úgynevezett klíma téglából készülnek.

- A külső körítő falak külső oldalai 15 cm grafitos EPS (H 80) hab hőszigetelő vakolatot kapnak.

- A tetőtér hőszigetelése, fújt hőszigetelő hab, kb. 45 cm vastag kőzetgyapotnak fele meg.

- A válaszfalak 10 N+F Porotherm válaszfal lapokból falazott 10 cm vastag falszerkezetek.

- A külső nyílászárók, fehér színben gyártott műanyag 3 rétegű, hőszigetelő üvegezéssel ellátottak (U= 0,9 W/m2K) ablakok lesznek.

- A meleg víz ellátást és a fűtést gáz kondenzációs kazán biztosítja majd, padlófűtés hűleadással.

Az alternatív fűtésről és hűtésről, KLÍMA fog gondoskodni.

A tervezet áram kapacitás 3 x16 A lesz.

Felár ellenében H-tarifás óra kérhető!

Helységlista:

- Földszint:
- 4,48 m² belépő ,
- 7,59 m² közlekedő,
- 12,12 m² szoba I.,
- 11,68 m² szoba II. ,
- 12,25 m² szoba III.,
- 4,80 m² fürdő,
- 1,44 m² WC,
- 3,68 m² gardrób,
- 3,27 m² háztartási helység,
- 31,03 m² nappali,
- 9,12 m² konyha étkező
- -----------------
101,46 m²

Nyitott terasz 11,28 m²

A terasz alatt szuterén tároló 9,10 m² lesz.


A kert durva tereprendezéssel lesz átadva.

Műszaki tartalom:

-Hideg burkolat 6.000 Ft/m²
-Meleg burkolat 5.000 Ft/m²
-Szaniterek 200.000 Ft-ig
-Beltéri ajtók 60.000 Ft, kilinccsel együtt /db


Magasabb árú építőanyag választás esetén a különbözetet a Vevő finanszírozza.

Az ár tartalmazza még:

- H-tarifa óra előkészítését, az órát és a dobozt nem.
- Kapumozgató elektronika előkészítését,
- Riasztó előkészítését.

A berendezések kiépítése opcionálisan, plusz pénzért megrendelhetők.

A belső VÁLASZFALAK, MÉG MÓDOSÍTHATÓK!


A Kivitelező a műszaki tartalom változtatás jogát fenntartja, az előírt energetikai előírások figyelembe vételével.

A Cég számos referenciával rendelkezik. Komoly érdeklődés esetén szívesen mutatunk referenciát!

Ne hagyja ki ezt a lehetőséget, legyen Ön az új ikerház tulajdonosa Pécelen!

Finanszírozás 10 + 10 % önerő.

Várható átadás: 2026 III. -IV. né.


JÖJJÖN el, NÉZZE meg, SZERESSEN bele!


A GV HitelCentrum, KÖTELEZETTSÉG MENTESEN és DÍJMENTESEN, versenyezteti Önért a bankok hitelajánlatait. Ismerje meg a vissza nem térítendő állami támogatásokat!

* Egyedi, bankfiókban nem elérhető kamat- és díjkedvezmények.
* Ingyenes Hitelképesség vizsgálat.
* Idő, energia és pénz megtakarítás.
* Teljes hivatali ügyintézés.
* Babaváró.
* CSOK+
* Hitel.
* Megtakarítás,
* és EGYÉB BANKI tranzakcióban segítségére lehetünk!

• Igény esetén, ÜGYVÉDI segítséget nyújtunk, MEGFIZETHETŐ áron!


Ha az ingatlannal kapcsolatban bővebb felvilágosításra lenne szüksége, hívjon bizalommal, állok rendelkezésére!

F.M.
További adatok
Telekterület: -
Kert mérete: -
Erkély mérete: 11 m2
Felszereltség: -
Parkolás: -
Kilátás: kertre néző
Egyéb extrák:  
Hirdető adatai
Hirdető neve: GDN Ingatlanhálózat
Kapcsolattartó: Fenyvesi Marianna
Hirdető telefonszáma: +36-20-981-3790
Honlap: -
 
Üzenetet küldhet a hirdetőnek, árajánlatot tehet az ingatlanra:
Az Ön neve:
Az Ön e-mail címe:
Üzenet: