Ingatlan Televízió
Ingatlan Televízió
további hirdetések
adatlap bezárása

Szigetszentmiklós 
 

Hivatkozási szám: 5837750
Ingatlan adatai
Irányár: 5 800 Ft
Típus: kereskedelmi/ipari ingatlan
Kategória: kiadó
Alapterület: 400 m2
Fűtés: egyéb
Állapota: felújított
Szobák száma: 1
Építés éve: 1960
Szintek száma: -
Részletes leírás
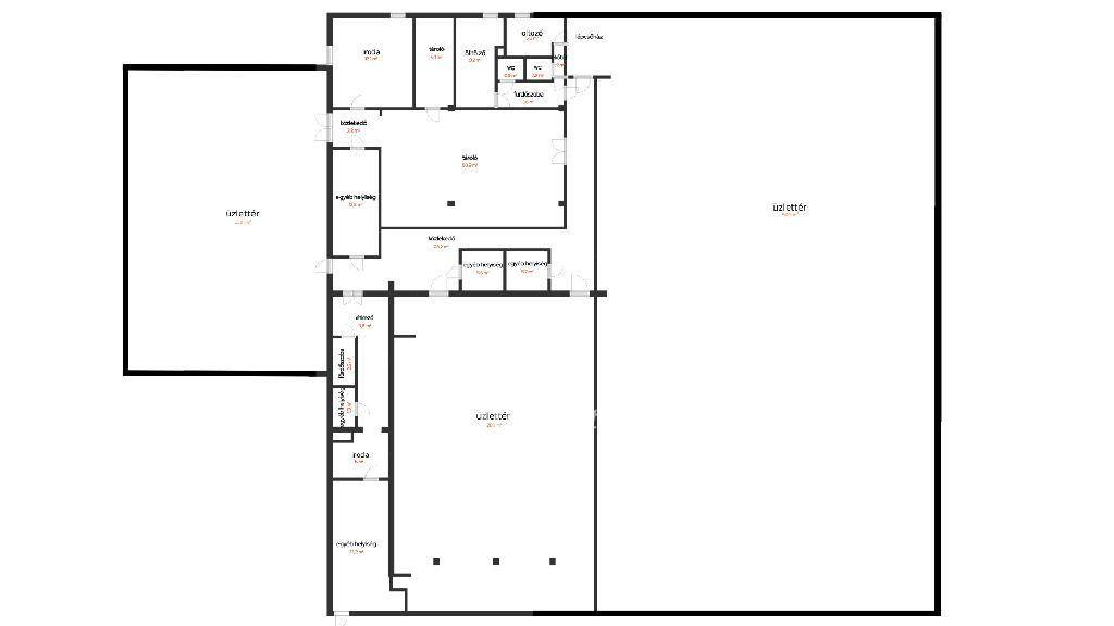
Szigetszentmiklós forgalmas útján kiadó 1027 nm-es földszinti + 140 nm-es emeleti, saját parkolókkal rendelkező épület együttes 400 nm-es üzlethelyisége. A parkolóban 6 csomagautomata is üzemel. Az ingatlan jelenleg üres, korábban élelmiszer üzlet működött benne. Igény esetén a tulajdonos nyitott további területek bérbeadására is. A bérleti díj : 12,5 EUR / m2 / hó + áfa -tól, tevékenységi kör és bérelt terület nagyságától változhat. Üzemeltetési díj: 0,95 EUR. 2017-ben az épületet teljes körűen felújították, kicserélték a víz,- villany vezetékeket, portálokat, álmennyezetet, burkolatokat, gyengeáramú rendszereket, korszerűsítették a hűtés-fűtés rendszert, a kamera,- és riasztó rendszert. Daikin VRV (Conveni Pack +Zeas) 2021-ben és 2023-ban energetikai fejlesztések történtek 83 KW-os napelemrendszer ABB inverter illetve 15,39 KW-os napelem rendszer bővítés (mérve 90.000 KW + áram termelés/év - szaldós elszámolással. További részletekért kérem keressen a megadott elérhetőségemen. A tulajdonos a bérlő választás jogát fenntartja, a szerződést közjegyzői okiratba foglaltatja, melynek a költsége a bérlőt terheli. 2 havi kaució és 1 havi bérleti díj megfizetése után azonnal költözhető. Minimum bérleti idő 5 év.
M312400

Referencia szám: M312400-ITV
További adatok
Telekterület: -
Kert mérete: -
Erkély mérete: -
Felszereltség: -
Parkolás: -
Kilátás: -
Egyéb extrák:  
Hirdető adatai
Hirdető neve: otpip.hu - Budapest XIII. kerület Lehel utca 50 - OTP Ingatlanpont Iroda
Kapcsolattartó: Takács Zsuzsanna
Hirdető telefonszáma: +36304953819
Honlap: -
 
Üzenetet küldhet a hirdetőnek, árajánlatot tehet az ingatlanra:
Az Ön neve:
Az Ön e-mail címe:
Üzenet: