Ingatlan Televízió
Ingatlan Televízió
további hirdetések
adatlap bezárása

Megyaszó 
 

Hivatkozási szám: 5836952
Ingatlan adatai
Irányár: 13 990 000 Ft
Típus: ház
Kategória: eladó
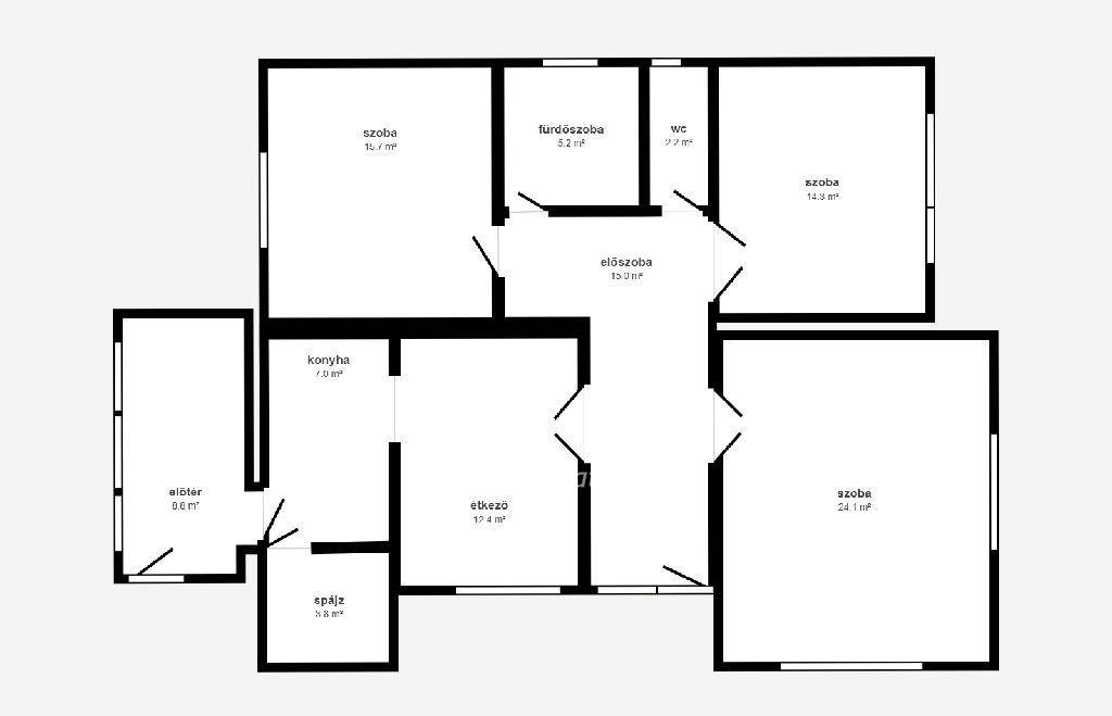
Alapterület: 108 m2
Fűtés: egyéb
Állapota: felújított
Szobák száma: 3
Építés éve: 1991
Szintek száma: 1
Részletes leírás
Megyaszón új tulajdonosát várja egy sokoldalúan hasznosítható, tágas családi ház nagy telekkel!
Falusi CSOK-ra, OTTHON START HITEL-re alkalmas!
Megyaszón eladó egy 110 nm-es, 1991-ben épült családi ház, amely tágas elrendezésével és sokoldalú lehetőségeivel ideális választás lehet családok számára. Az ingatlan három szobával, konyhával étkezővel és kamrával, fürdőszobával, külön wc-vel, valamint egy hangulatos pihenőrésszel rendelkezik. A ház teljesen alápincézett, a pincében garázs is kialakításra került, így bőséges tárolási lehetőséget biztosít.
A tető jó állapotú, héjazata tíz éve lett felújítva. A fűtés vegyes tüzelésű kazánnal, radiátorokon keresztül történik, a melegvíz-ellátásról bojler gondoskodik. A ház részben átvezetékelt, továbbá hűtő-fűtő klíma is beépítésre került. Betonfödémes szerkezetének köszönhetően a tetőtér beépíthető, így a jövőben akár tovább bővíthető.
A tágas telek gazdálkodásra vagy vállalkozási célokra is kiválóan alkalmas, ráadásul két utcáról is megközelíthető, ami különösen praktikus.
Falusi CSOK-ra, OTTHON START HITEL-re alkalmas!
OTP hátterünkkel díjmentes-, soron kívüli ügyintézést biztosítunk ügyfeleink számára. (OTTHONSTART HITEL 3%, FALUSI CSOK, CSOKPLUSZ, BABAVÁRÓ, JELZÁLOGHITEL, SZEMÉLYI KÖLCSÖN)
Referenciaszám: M311262
További adatok
Telekterület: 2 431 m2
Kert mérete: -
Erkély mérete: -
Felszereltség: -
Parkolás: garázs
Kilátás: -
Egyéb extrák:  
Hirdető adatai
Hirdető neve: otpip.hu - Miskolc Szemere Bertalan utca 20 - OTP Ingatlanpont Iroda
Kapcsolattartó: Bányiczki Márk
Hirdető telefonszáma: +36-30-469-5044
Honlap: -
 
Üzenetet küldhet a hirdetőnek, árajánlatot tehet az ingatlanra:
Az Ön neve:
Az Ön e-mail címe:
Üzenet: