Ingatlan Televízió
Ingatlan Televízió
további hirdetések
adatlap bezárása

Szendrő 
 

Hivatkozási szám: 5836947
Ingatlan adatai
Irányár: 13 700 000 Ft
Típus: ház
Kategória: eladó
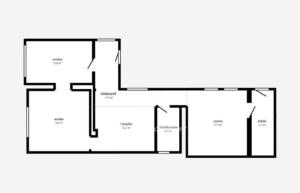
Alapterület: 82 m2
Fűtés: gáz (konvektor)
Állapota: felújított
Szobák száma: 3
Építés éve: 1955
Szintek száma: 1
Részletes leírás
Szendrő csendes utcájában eladó egy 82 nm-es, bővíthető, tehermentes, 3 szobás családi ház 1404 nm-es telken. Az ingatlan 1955-ben épült, falazata tégla, vályog és szilikát kombinációjából készült. A külső falak részben 5 cm nikecell szigeteléssel ellátottak. A tető jó állapotú, a nyílászárók hagyományos fa kivitelűek. Fűtés gázkonvektorokkal és kandallóval.
A ház elrendezése praktikus: három különnyíló szoba, konyha, előtér és közlekedő található benne. Az ingatlan két bejárattal rendelkezik, ami akár két generáció együttélésére is lehetőséget nyújt.
A főépület mellett több melléképület is van:
nyárikonyha, benne fürdőszobával, garázs, fedett kocsibeálló. A ház mögött tágas kert, mely kiválóan alkalmas pihenésre, kertészkedésre vagy állattartásra
A nagy telek mérete lehetőséget biztosít további gazdálkodásra, kertművelésre, gyümölcsfák ültetésére. Az ingatlan tehermentes, így azonnal birtokba vehető.
Ingatlanirodánk ügyvédi háttérrel, Babaváró hitel, Falusi CSOK, CSOK Plusz, valamint kamatkedvezményes hitel ügyintézésével támogatja ügyfelei ingatlanvásárlását! Az ingatlan az Otthon Start Hitelprogram -nak megfelel. M312514

Az energetikai tanúsítvány készítése folyamatban van, amint rendelkezésre áll, úgy azzal a hirdetés frissítésre kerül.


Érdeklődni: Czugh Péter 70-3934954
További adatok
Telekterület: 1 404 m2
Kert mérete: -
Erkély mérete: -
Felszereltség: -
Parkolás: garázs
Kilátás: -
Egyéb extrák:  
Hirdető adatai
Hirdető neve: otpip.hu - Miskolc - OTP Ingatlanpont Iroda
Kapcsolattartó: Czugh Péter
Hirdető telefonszáma: +36703934954
Honlap: -
 
Üzenetet küldhet a hirdetőnek, árajánlatot tehet az ingatlanra:
Az Ön neve:
Az Ön e-mail címe:
Üzenet: