Ingatlan Televízió
Ingatlan Televízió
további hirdetések
adatlap bezárása

Budapest, VIII.kerület 
 

Hivatkozási szám: 5836353
Ingatlan adatai
Irányár: 900 000 Ft
Típus: kereskedelmi/ipari ingatlan
Kategória: kiadó
Alapterület: 330 m2
Fűtés: -
Állapota: -
Szobák száma: -
Építés éve: 2002
Szintek száma: -
Részletes leírás
Budapest egyik legkülönlegesebb városrészében, a Tisztviselőtelep műemléki villanegyedében, a Bíró Lajos utcában kiadó egy 330 m² alapterületű, többszintes irodaépület-rész. A környék ritka adottsága, hogy zöldövezeti nyugalmat kínál, miközben a belváros és a fő közlekedési útvonalak is gyorsan elérhetők.

Az ingatlan egy 2002-ben épült, kívül-belül újszerű állapotú, klimatizált és riasztóval felszerelt épület egyik fele, mely irodaként korábban is funkcionált. A ház másik fele hosszú távú bérletben van, megbízható bérlővel.

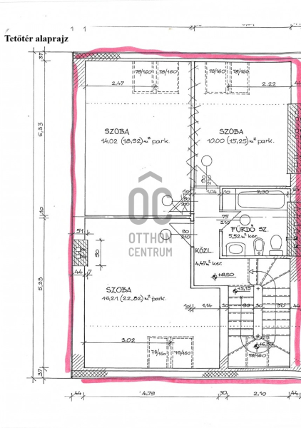
Elrendezés:
Alagsor (69 m²): 2 helyiség, fürdőszoba, WC
Földszint (78,2 m²): 2 helyiség, fürdőszoba, WC, terasz
I. emelet (74,4 m²): 3 helyiség, fürdőszoba, WC, terasz
Tetőtér (76,5 m²): 2 nagy szoba, teakonyha, fürdőszoba

Összesen 9 irodahelyiség, több fürdőszoba és mellékhelyiség, kertkapcsolattal és teraszokkal.
A szintek külön is szeparálhatók, így akár több részleg vagy funkció is könnyen elkülöníthető.

Főbb jellemzők:
Újszerű, rendezett épület
Cirkófűtés – fogyasztás alapú rezsi
Nincs közös költség
Saját kert és terasz
Klíma és riasztó
Csendes, biztonságos környék

Közlekedés:
Nagyvárad téri metró: 10 perc gyalog, 4 perc autóval
Könyves Kálmán körút – 1-es villamos: 7 perc séta
Orczy út: villamos, busz 3 perc sétára
További adatok
Telekterület: -
Kert mérete: -
Erkély mérete: -
Felszereltség: -
Parkolás: -
Kilátás: -
Egyéb extrák:  
Hirdető adatai
Hirdető neve: Otthon Centrum
Kapcsolattartó: Lengyel-Nagy Evelyn
Hirdető telefonszáma: +36 70 412 3241
Honlap: -
 
Üzenetet küldhet a hirdetőnek, árajánlatot tehet az ingatlanra:
Az Ön neve:
Az Ön e-mail címe:
Üzenet: