Ingatlan Televízió
Ingatlan Televízió
további hirdetések
adatlap bezárása

Budapest, I.kerület 
 

Hivatkozási szám: 5836298
Ingatlan adatai
Irányár: 2 580 600 Ft
Típus: kereskedelmi/ipari ingatlan
Kategória: kiadó
Alapterület: 437 m2
Fűtés: -
Állapota: -
Szobák száma: -
Építés éve: -
Szintek száma: -
Részletes leírás
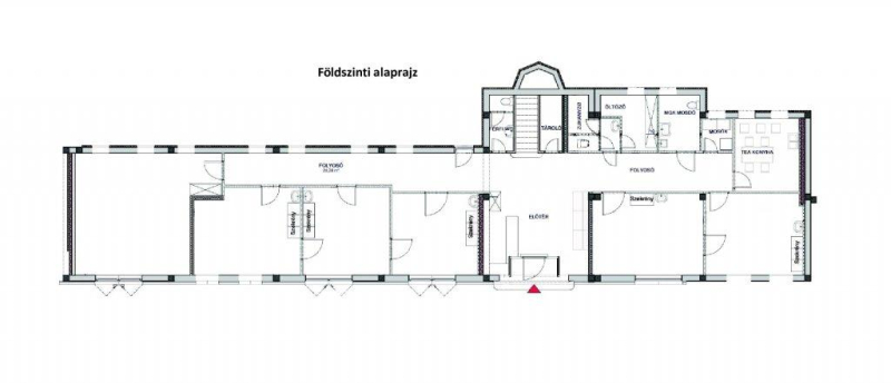
Budapest I. kerületében, Krisztinaváros elegáns részének nevezetes házában kiadó egy utcafronti, kétszintes, hármas tagolású iroda-üzlethelyiség.

Tágas recepció, ahonnan a hármas tagolásnak köszönhetően egy nagy, vagy akár három külön szolgáltatói kör érhető el.
Korábban itt exkluzív szépségszalon működött, mely szolgáltatási körre jelenleg is a legalkalmasabb az ingatlan. A belső terek a szobák közötti válaszfalak áthelyezésével szabadon variálhatóak. Elektromos padlófűtés, vízvezeték rendszer, klimatizálás minden szobában.

Jelenlegi beosztás alapján 6+6 teljes szoba/iroda, plusz 2 alkóv (ablak nélküli tároló), nagy recepció, folyosók, mosdók, öltözők, zuhanyzók várják bérlőiket. Profilváltás esetén a 12 szobában/irodában összesen akár 24+15 munkaállomás is telepíthető, így a kétszintes ingatlan irodaházként közepes méretű vállalkozás központjává is válhat.

Érdeklődése esetén állunk rendelkezésére! Az ingatlan személyes megtekintése előtt bővebb felvilágosítást adunk, további képeket is mutatunk, az ingatlantúrát kérésére megszervezzük.


MIK azonosító: 3813100
További adatok
Telekterület: -
Kert mérete: -
Erkély mérete: -
Felszereltség: -
Parkolás: -
Kilátás: -
Egyéb extrák:  
Hirdető adatai
Hirdető neve: MIK Magyar Ingatlan Központ
Kapcsolattartó: Bosnyák Zoltán
Hirdető telefonszáma: +36-30-6936328
Honlap: -
 
Üzenetet küldhet a hirdetőnek, árajánlatot tehet az ingatlanra:
Az Ön neve:
Az Ön e-mail címe:
Üzenet: