Ingatlan Televízió
Ingatlan Televízió
további hirdetések
adatlap bezárása

Gárdony 
 

Hivatkozási szám: 5835642
Ingatlan adatai
Irányár: 29 900 000 Ft
Típus: ház
Kategória: eladó
Alapterület: 15 m2
Fűtés: -
Állapota: felújítást igényel
Szobák száma: 1
Építés éve: 1950
Szintek száma: 1
Részletes leírás
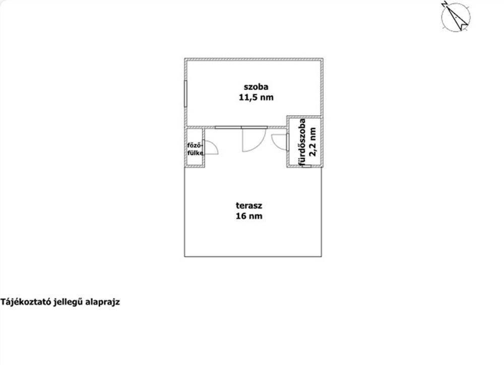
Fejér megye, Gárdony 15 nm-es nyaraló eladó. Kiváló elhelyezkedésű ingatlan, séta távolságra a Velencei tótól és a vasútállomástól, a közelben bevásárlási lehetőségek is megtalálhatóak. A tehermentes, könnyűszerkezetes nyaraló egy 259 nm-es üdülő övezeti telken fekszik, melynek beépíthetősége 15 %, a megengedett legnagyobb építmény magasság 4,5 méter. A közművek közül a víz, villany, csatorna az ingatlanba bevezetve, a gáz telken belül található. A telek körbekerített. Aszfaltozott, átmenő forgalomtól mentes utcában található. A nyaralóban 1 szoba, fürdőszoba, főzőfülke lett kialakítva, valamint tartozik hozzá egy 16 nm-es terasz. Az ingatlan alkalmas nyaralónak vagy a telken új lakóingatlan megépítésére, a tópart közelsége miatt kiváló választás. Teljes körű ügyintézésben segítjük ügyfeleinket díjtalanul: kedvezményes hitel mobil bankári szolgáltatással, adásvétel teljes lebonyolításával. Bővebb információkért, kérem keressen bizalommal, akár hétvégén is.
További adatok
Telekterület: 259 m2
Kert mérete: -
Erkély mérete: 16 m2
Felszereltség: -
Parkolás: lakáshoz van kültéri parkoló
Kilátás: -
Egyéb extrák:  
Hirdető adatai
Hirdető neve: otpip.hu - Székesfehérvár Palotai út 8 - OTP Ingatlanpont Iroda
Kapcsolattartó: Darnai Henrietta
Hirdető telefonszáma: +36-20-487-4399
Honlap: -
 
Üzenetet küldhet a hirdetőnek, árajánlatot tehet az ingatlanra:
Az Ön neve:
Az Ön e-mail címe:
Üzenet: