Ingatlan Televízió
Ingatlan Televízió
további hirdetések
adatlap bezárása

Fót 
Czuczor Gergely utca 

Hivatkozási szám: 5835467
Ingatlan adatai
Irányár: 16 000 000 Ft
Típus: telek
Kategória: eladó
Alapterület: -
Fűtés: -
Állapota: -
Szobák száma: -
Építés éve: -
Szintek száma: -
Részletes leírás
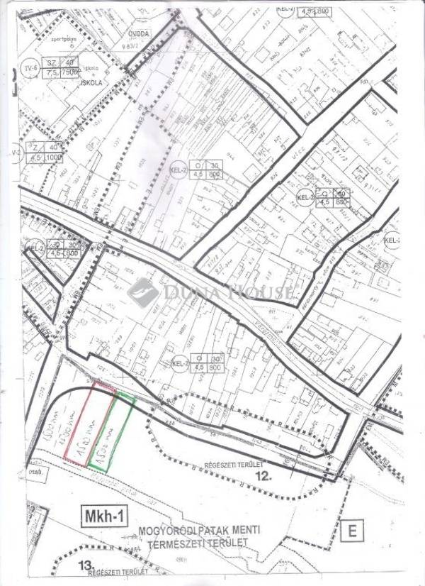
Kivételesen jó lehetőség befektetőknek és építkezőknek ez a remek adottságú és elhelyezkedésű 1.500 m2 telek.. (+ a közvetlenül mellette levő, ugyanilyen méretű és adottságú telek)- 17,5 m (utcafront) x 86 m, hosszú, keskeny téglalap alakú, sík felszínű telek.- telek előtt : víz, villany, gáz és a csatorna- építési övezet jelenlegi besorolása : Mkh-1- átminősítési kérelem beadva, mivel minden szomszédos utca, sőt az utca másik oldala is KEL-2 kertvárosi lakóövezeti besorolású- KEL-2 a Hatályos építési szabályozás szerint :- beépíthetősége : max. 30%, oldalhatáron álló beépítési móddal- a telek D-i végében folyik a Mogyoródi-patak- a telek utcafronti első 35 méterén lehet építkezni- építménymagasság : max.4,5 m- kialakítható telkek legkisebb mérete : 800 m2- aszfaltozott utca- kíváló közlekedés, buszmegálló pár perc sétára- Fót egyik kedvelt környéke, a Nagytemplom közelében- óvoda, iskola, önkormányzat, rendőrség, állatorvosi rendelő, gyógyszertár sétatávolságra- számtalan vásárlási lehetőség (termelői piac, pékség, hentes, cukrászda) a közelben- csendes, biztonságos környékJelen besorolási állapota miatt ilyen kedvező az ára.Hasznosítási lehetőségei leendő tulajdonosa igényei szerint alkalmas állattartásra, lótartásra, kutyaiskola alapítására, raktárbázis, konténerpark, gazdasági épület építésére.Sokrétű gazdasági vállalkozási tevékenységre alkalmas addig is, amíg az átminősítése megtörténik

Referencia szám: TK078622
További adatok
Telekterület: 1 500 m2
Kert mérete: -
Erkély mérete: -
Felszereltség: -
Parkolás: -
Kilátás: -
Egyéb extrák:  
Hirdető adatai
Hirdető neve: dh.hu - Fót
Kapcsolattartó: Besenyei Frigyes Ferenc
Hirdető telefonszáma: +36704117440
Honlap: -
 
Üzenetet küldhet a hirdetőnek, árajánlatot tehet az ingatlanra:
Az Ön neve:
Az Ön e-mail címe:
Üzenet: