Ingatlan Televízió
Ingatlan Televízió
további hirdetések
adatlap bezárása

Apc 
 

Hivatkozási szám: 5835395
Ingatlan adatai
Irányár: 19 900 000 Ft
Típus: ház
Kategória: eladó
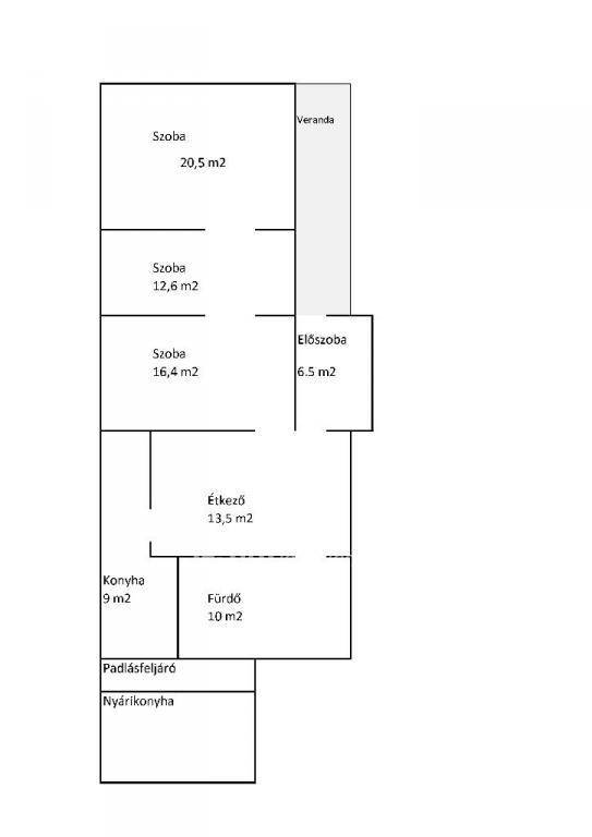
Alapterület: 87 m2
Fűtés: gáz (konvektor)
Állapota: felújított
Szobák száma: 3
Építés éve: 1960
Szintek száma: 1
Részletes leírás
Eladó Heves megyében, Apc községben (Budapesttől 70 km-re) egy 790 m2-es telken elhelyezkedő, 87m2-es 3 szobás jó állapotú családi ház.
Az elmúlt években a víz és villanyvezetékek cseréjére került sor.
Az otthon melegéről kályha és gáz konvektorok, meleg vízről bojler gondoskodik.
A szobák burkolata laminált parketta.
Az épület alatt 4m2-s száraz pince helyezkedik el.
Az utca lakóközösség jó, csendes szomszédokkal.
A közelben pár percen belül élelmiszerbolt, bölcsőde, óvoda, iskola, polgármesteri hivatal, orvosi rendelő, posta, gyógyszertár.
Közvetlen autóbuszjáratok: Budapest, Eger, Gyöngyös, Salgótarján.
A falusi CSOK igényelhető a településen, melynek ügyintézését díjmentesen vállaljuk.
Ügyvédi háttérrel, ingyenes pénzügyi tanácsadással és kedvezményes hitellel segítjük vásárlását.
További adatok
Telekterület: 790 m2
Kert mérete: -
Erkély mérete: -
Felszereltség: -
Parkolás: lakáshoz van kültéri parkoló
Kilátás: -
Egyéb extrák:  
Hirdető adatai
Hirdető neve: otpip.hu - Eger Törvényház utca 4 - OTP Ingatlanpont Iroda
Kapcsolattartó: Vályi-Nagy Károly
Hirdető telefonszáma: +36-30-218-7461
Honlap: -
 
Üzenetet küldhet a hirdetőnek, árajánlatot tehet az ingatlanra:
Az Ön neve:
Az Ön e-mail címe:
Üzenet: