Ingatlan Televízió
Ingatlan Televízió
további hirdetések
adatlap bezárása

Debrecen 
 

Hivatkozási szám: 5834290
Ingatlan adatai
Irányár: 28 000 000 Ft
Típus: kereskedelmi/ipari ingatlan
Kategória: eladó
Alapterület: 20 m2
Fűtés: -
Állapota: -
Szobák száma: -
Építés éve: 2026
Szintek száma: -
Részletes leírás
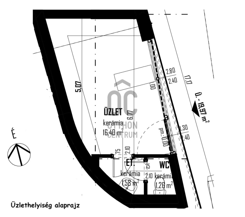
UTCAFRONTI (20 nm) ÜZLETHELYISÉG:

- 17 nm-es üzlettér
- 3 nm-es mosdó kialakítással.

Vételár: 28.000.000.- + ÁFA

Mindazoknak kiváló lehetőség, akik keresik a kis alapterületű, alacsony fenntartási költségű olyan ingatlant, ami tevékenységükhöz megfelelő.
A belváros nyújtotta számos lehetőség, nagy üvegportál, gyalogos forgalom, valamint a főútról való jó láthatóság kedvező tényező.
Projekt bemutatása

Belváros szívében, Nagytemplomtól 500 méterre épül a 8 lakásos, liftes társasház.

Az értékesítés elkezdődött!!!!

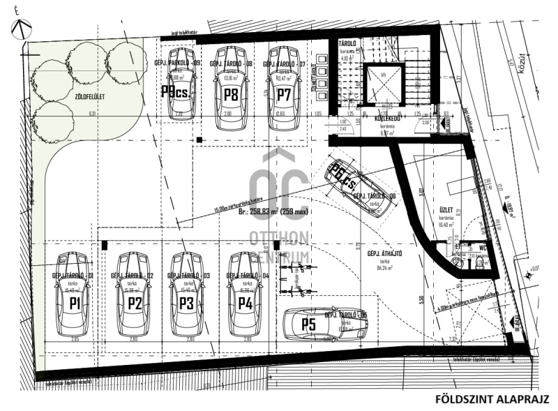
Földszinten 1 db üzlethelyiség és fedett/nyitott gépjárműtárolók (8MFt + ÁFA), melyek megvásárlása nem szükségszerű!
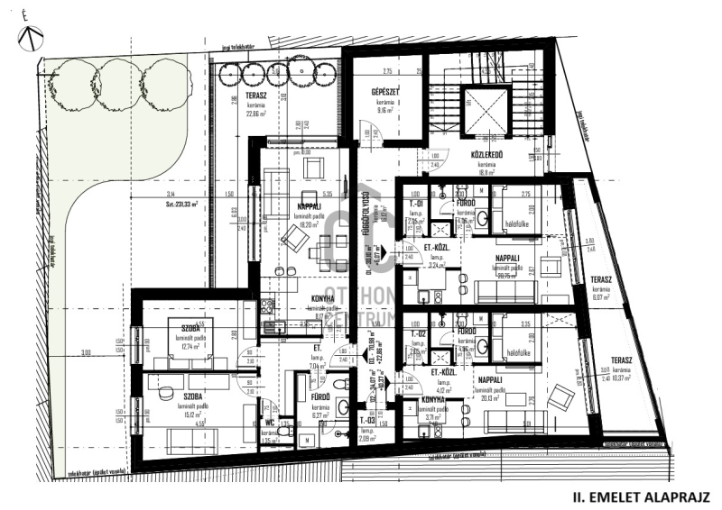
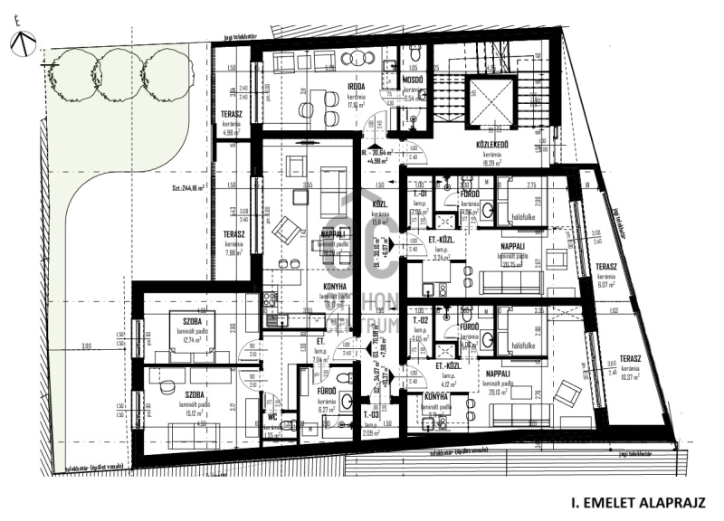
Az I. és II. emeletén 3 - 3 lakás, melyek garzon (nappali + hálófülke) és nappali + 2 hálós kialakításuak.
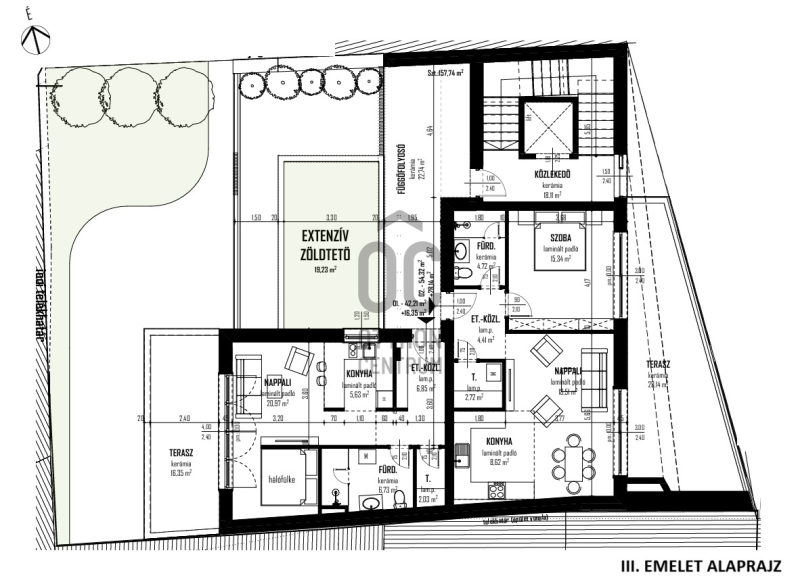
A III. emeleten 2 lakás, melyből az egyik garzon, míg a másik nappali + 1 hálós.

A modern és ízléses külsőhöz egyedi elosztású, élhető terekkel rendelkező, napfényes lakásokat terveztek, házközpontú kondenzációs gázkazánnal (fan-coil) fűtés-hűtés, hőszigetelt nyílászárókkal, minőségi szaniterekkel.

A beruházó és kivitelező múltja és referenciái, garancia a minőségi és egyben megbízható projektnek!

KÖZPONTI ELHELYEZKEDÉS, KIVÁLÓ KÖZLEKEDÉS:

A Hal köz párszáz méterre kávézókkal, éttermekkel, teraszokkal várja a vendégeket.
Villamos és buszközlekedés csak séta távolságra, mellyel a város bármelyik pontjára könnyen eljuthatunk.
A kiváló infrastruktúrának köszönhetően az ingatlanok értékállóak.
Ideális mindazok számára, akik szeretnek a belvárosban élni és az ezzel járó számos előnyt élvezni!
A lakások - akár külföldi - bérlők igényeit is kielégítő, könnyen bérbe adható, ízléses apartmanokká alakíthatóak!

Válasszon az alábbi lehetőségek közül, ha Önnek fontos a belváros nyújtotta kedvező adottság, illetve az értékállóságot keresi jövőjét illetően!

Várható átadás: 2026. III. negyedév.

Hitelügyintézést banki kollégánk teljeskörűen és ingyen bonyolítja Önnek irodánkban, de akár otthonában is!
További adatok
Telekterület: -
Kert mérete: -
Erkély mérete: -
Felszereltség: -
Parkolás: -
Kilátás: -
Egyéb extrák:  
Hirdető adatai
Hirdető neve: Otthon Centrum
Kapcsolattartó: Némethné Zsuzsa
Hirdető telefonszáma: +36 70 412 3861
Honlap: -
 
Üzenetet küldhet a hirdetőnek, árajánlatot tehet az ingatlanra:
Az Ön neve:
Az Ön e-mail címe:
Üzenet: