Ingatlan Televízió
Ingatlan Televízió
további hirdetések
adatlap bezárása

Debrecen 
 

Hivatkozási szám: 5833751
Ingatlan adatai
Irányár: 750 000 000 Ft
Típus: kereskedelmi/ipari ingatlan
Kategória: eladó
Alapterület: 700 m2
Fűtés: egyéb
Állapota: felújított
Szobák száma: -
Építés éve: 2000
Szintek száma: -
Részletes leírás
Eladó irodaház Debrecen szívében ? azonnal birtokba vehető!

Debrecen az ország egyik legdinamikusabban fejlődő gazdasági, egyetemi, turisztikai és kulturális központja. A városban olyan meghatározó nagyvállalatok telepedtek meg, mint a BMW, az NI, a TEVA, a KITE vagy a HUNÉP. A folyamatos beruházások, a határ közelsége és a saját repülőtér mind hozzájárulnak a térség kiemelkedő innovációs és gazdasági fejlődéséhez.

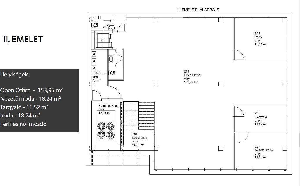
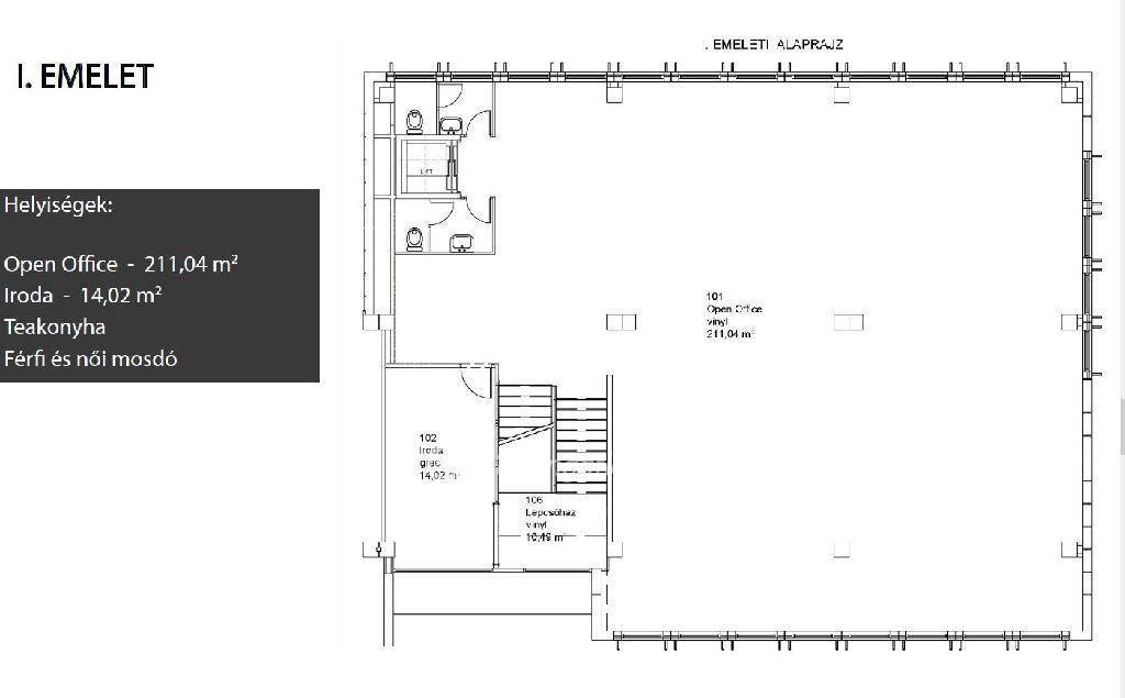
Az eladó irodaház a belváros szívében, a központtól mindössze 3 perc sétára található. A modern, inspiráló környezetben kialakított épület három szinten kínál irodákat, közös konyhával és minden szükséges infrastruktúrával.

Kiváló elhelyezkedés és infrastruktúra:

Főtér és Nagytemplom: 5 perc

Villamosmegálló (1, 2-es járat): 1?4 perc

Buszmegálló (11, 14I, 15, 15Y, 24, 24Y, 43): 2 perc

200 férőhelyes parkoló közvetlenül az épület mögött

Bank, posta, gyógyszertár, éttermek és bevásárlóközpont pár perc sétára

Az ingatlan fő előnyei:
? Kivételes lokáció a belvárosban
? Háromszintes, azonnal birtokba vehető irodaház
? Kényelmes közlekedés autóval és tömegközlekedéssel
? Széleskörű szolgáltatások közvetlen közelben
? Stabil értéktartás és befektetési potenciál

Ez az irodaház ideális választás azok számára, akik Debrecen központjában szeretnének saját tulajdonú irodát, vagy hosszú távra keresnek értékálló befektetést.
A megvásárlásban segítséget nyujthat a vállakozásoknak elérhető OTP-s beruházási hitel illetve a KAVOS 3% hitelt. A hitel széles körben alkalmas beruházási célok megvalósítására,
állami kamat-, kezelési költség- és kezességi díjtámogatás,
akár 500 millió forint hitelösszeg igényelhető,
legfeljebb 10 éves futamidőre nyújtható.
Megtekíntésért hívjon most!
Érd.Balla László +36 30 419 5022

Referencia szám: M313578
További adatok
Telekterület: -
Kert mérete: -
Erkély mérete: -
Felszereltség: -
Parkolás: lakáshoz van kültéri parkoló
Kilátás: -
Egyéb extrák:  
Hirdető adatai
Hirdető neve: otpip.hu - Debrecen Piac utca 53-55 - OTP Ingatlanpont Iroda
Kapcsolattartó: Balla László
Hirdető telefonszáma: +36-30-419-5022
Honlap: -
 
Üzenetet küldhet a hirdetőnek, árajánlatot tehet az ingatlanra:
Az Ön neve:
Az Ön e-mail címe:
Üzenet: