Ingatlan Televízió
Ingatlan Televízió
további hirdetések
adatlap bezárása

Dömsöd 
 

Hivatkozási szám: 5833083
Ingatlan adatai
Irányár: 99 800 000 Ft
Típus: ház
Kategória: eladó
Alapterület: 120 m2
Fűtés: -
Állapota: új
Szobák száma: 3
Építés éve: 2025
Szintek száma: 2
Részletes leírás
Otthon Start Hitelprogram

PREMIUM minőségben Eladó Dömsödön, közel a Ráckevei Dunaághoz, egy most épülő ikerház mindkét oldala, 830,282 Ft./m2 áron, ügyvédi megosztási szerződéssel.

Hozzá tartozó bruttó kertrész 285 m2.
Ikerház területe áll: 105,8 m2 lakótér + 21,2 m2 teraszok + 16,1 m2 garázs, azaz 120,2 m2 hivatalosan.
Várható kulcsrakész átadás, ajándék gépiesitett konyhabútorral

Jellemzők:

Az épület beton alapra épült, terasz kapcsolatos, kerámia beton falazatú.

Parkolás: Egyállásos garázshely

Fűtés, hűtés: Levegő-víz hőszivattyús rendszer, padló és mennyezet fűtés / hűtés PANASONIC

Védelmi felszereltség:: Riasztó, kamerás kaputelefon

Egyéb tulajdonságok: Prémium minőségű nyílászárók és szaniterek, elektromos redőnyök

Szigetelés: EPS Hőszigetelés 20cm

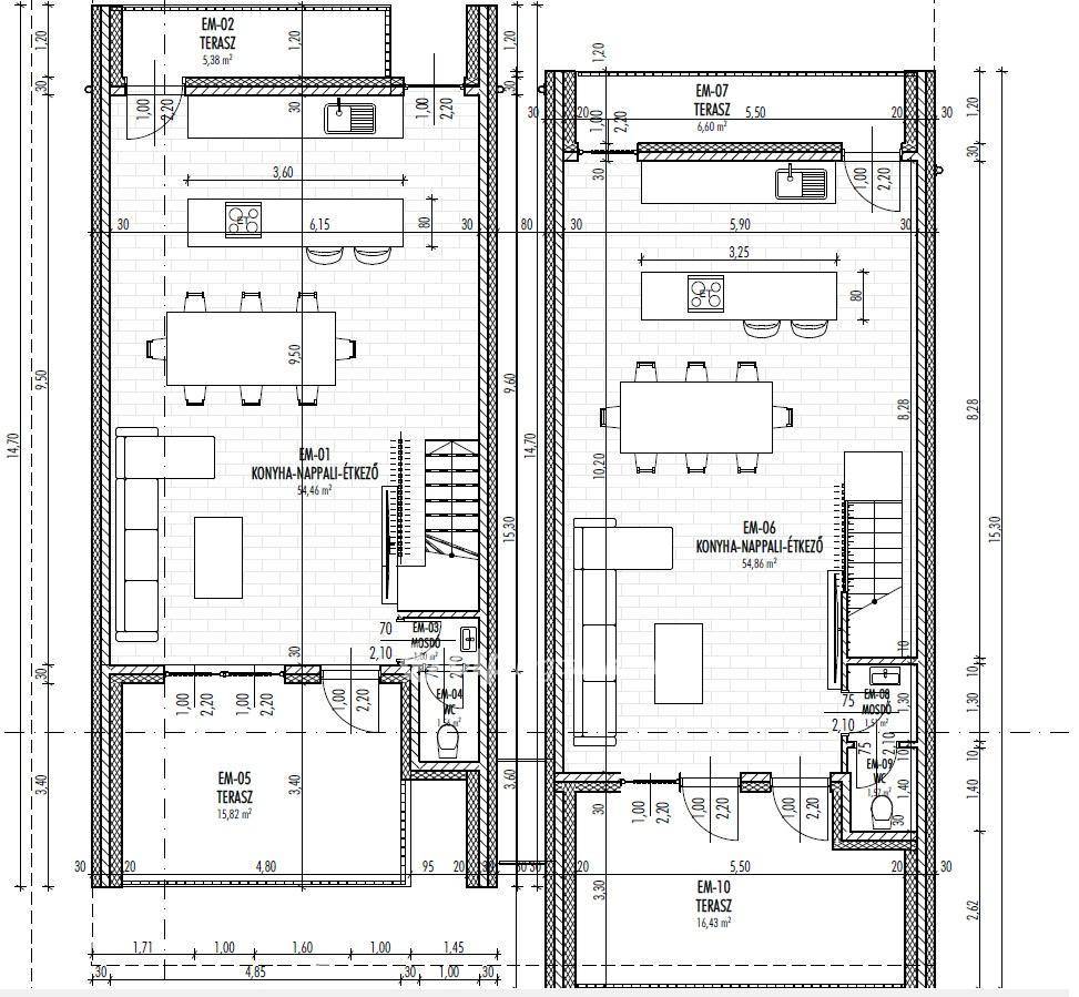
Helyiséglista:

Garázs 16,1 m2
Előszoba 7,1 m2
Közlekedő 9,5 m2
Mosókonyha 5,1 m2
Fürdőszoba 4,4 m2
WC 1,9 m2
Szoba 11,1 m2
Szoba 10,6 m2
Amerikai konyhás nappali 54,5 m2
WC 1,6 m2
Terasz 15,8 m2
Terasz 5,4 m2
We can recommend the assistance of a reliable (English speaking) lawyer, if so requested and can also offer help at arranging the administrative matters related to the acquisition. If you wish to send an English language notification of your interest, please send a message thereof indicating your phone number (and/or e-mail address) so we can contact you without language difficulties.

Referencia szám: M310413
További adatok
Telekterület: 285 m2
Kert mérete: -
Erkély mérete: 21 m2
Felszereltség: -
Parkolás: garázs
Kilátás: -
Egyéb extrák:  
Hirdető adatai
Hirdető neve: otpip.hu - Budapest XIII. kerület Pannónia utca 25 - OTP Ingatlanpont Iroda
Kapcsolattartó: Rácz Ildikó Éva
Hirdető telefonszáma: +36-70-393-4956
Honlap: -
 
Üzenetet küldhet a hirdetőnek, árajánlatot tehet az ingatlanra:
Az Ön neve:
Az Ön e-mail címe:
Üzenet: