Ingatlan Televízió
Ingatlan Televízió
további hirdetések
adatlap bezárása

Budapest, IV.kerület 
 

Hivatkozási szám: 5832799
Ingatlan adatai
Irányár: 219 900 000 Ft
Típus: kereskedelmi/ipari ingatlan
Kategória: eladó
Alapterület: 418 m2
Fűtés: -
Állapota: -
Szobák száma: -
Építés éve: -
Szintek száma: -
Részletes leírás
Sokoldalú üzleti ingatlan eladó a 4. kerületben.

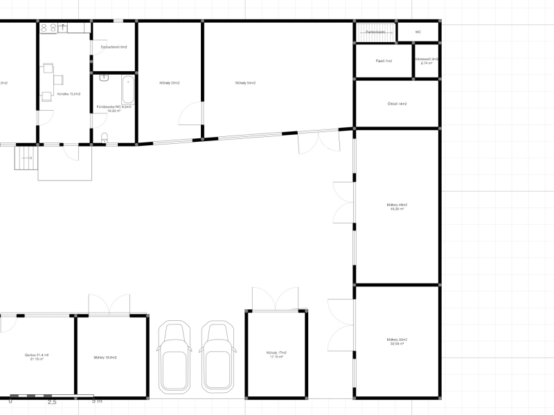
Budapest IV. kerületében, könnyen megközelíthető helyen kínálunk eladásra egy 1004 m²-es telken elhelyezkedő, több funkcióra alkalmas ingatlant:

Lakóépület: nettó 174 m² (jelenleg 3 külön lakás), bruttó 418 m²
Gazdasági épület: 244 m² – korábban fémipari tevékenység helyszíne
Tetőtér: beépíthető, további kb. 150 m² hasznos alapterület kialakítható
Telek méret: 1004 m²

Az ingatlan kiválóan alkalmas cégek számára:

irodahelyiségek kialakítására
könnyűipari/termelő tevékenység folytatására
felvonulási területként vagy logisztikai célokra
dolgozók elszállásolására (a meglévő lakások és a tetőtér-beépítés révén)

A terület adottságai miatt befektetők, vállalkozók, gyártó- vagy szolgáltató cégek számára is ideális választás.
Az infrastruktúra kiváló: fő közlekedési útvonalak gyorsan elérhetők, a környék ellátottsága teljes.

Sok lehetőséget rejtő ingatlan, amely egyszerre kínál lakhatási, irodai és ipari hasznosítási megoldásokat.
További adatok
Telekterület: -
Kert mérete: -
Erkély mérete: -
Felszereltség: -
Parkolás: -
Kilátás: -
Egyéb extrák:  
Hirdető adatai
Hirdető neve: Otthon Centrum
Kapcsolattartó: Katona Mátyás
Hirdető telefonszáma: +36 70 469 3036
Honlap: -
 
Üzenetet küldhet a hirdetőnek, árajánlatot tehet az ingatlanra:
Az Ön neve:
Az Ön e-mail címe:
Üzenet: