Ingatlan Televízió
Ingatlan Televízió
további hirdetések
adatlap bezárása

Kömlő 
 

Hivatkozási szám: 5831755
Ingatlan adatai
Irányár: 13 000 000 Ft
Típus: ház
Kategória: eladó
Alapterület: 72 m2
Fűtés: gáz (cirko)
Állapota: felújított
Szobák száma: 3+1
Építés éve: 1950
Szintek száma: 1
Részletes leírás
Heves vármegyében, Egertől 30 km, a Tisza-tótól 20 km távolságra, a falusi CSOK igénylésére alkalmas Kömlő községben, 4142 nm alapterületű belterületi telken, 72 nm hasznos alapterületű, vegyes falazatú, összkomfortos, kívül-belül felújított családi ház, családi okok miatt sürgősen eladó!
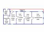
Az ingatlan helyiségei: egy 24,5 nm-es nagyszoba, kettő 12 nm-es szoba, egy 10,5 nm-es konyha, egy 7 nm-es fürdőszoba és az udvarról nyíló 6 nm-es raktár.
A házat az elmúlt években kívül-belül, teljes-körűen felújították!
A tetőszerkezetet, a szarufákat, a léceket, az összes faanyagot kicserélték, leszigetelték, lefóliázták, a cserepek olyan jó állapotban voltak, hogy nem szorultak cserére, kiválogatást követően felkerültek új helyükre.
Az épület villany, víz, szennyvíz vezetékeit, szerelvényeit kicserélték, az összes helyiség új vakolatot, festést, burkolatot kapott, a szobák laminált padlósak, a konyha és a fürdőszoba járólapos, fűtéséről új gázkonvektorok gondoskodnak, szükség esetén kályhákkal is lehet fűteni!
Az udvaron a konyhabejárat előtt hűs árnyékot nyújtó filagória található, amely pihenésre, étkezésre, a szabadidő hasznos eltöltésére, vendéglátásra is kiválóan alkalmas!
Az óriási telken grillezésre, nyársalásra, bográcsozásra használható tűz helyet, sportolásra, szabadtéri játékok művelésére alkalmas szép, füves, gyümölcsös vagy veteményeskertet is ki lehet alakítani, de nagysága miatt építési telkekre is fel lehet osztani! Jelenleg akácerdő van benne, amely szükség esetén bőséges tüzelőt tud biztosítani az új lakók számára.
Az ingatlant nagy családosoknak, a Tisza-tó közelsége miatt nyaralni vágyóknak vagy falusi turizmus keretében, apartman vagy vadászházat üzemeltető vállalkozóknak, egyaránt jó szívvel tudom ajánlani!
Ügyvédi háttérrel, több mint 25 éves gyakorlattal, falusi-CSOK-, CSOK-Plusz-, kamatmentes Babaváró és Munkás-, kamattámogatott és egyedi-kamatkedvezményes piaci hitelközvetítéssel, teljes-körű ügyintézéssel állunk ügyfeleink rendelkezésére!
További információkért a megadott elérhetőségeken kérem, forduljon hozzám bizalommal, időpont egyeztetést követően jöjjön, nézzük meg együtt álmai ingatlanát!
További adatok
Telekterület: 4 142 m2
Kert mérete: -
Erkély mérete: -
Felszereltség: -
Parkolás: lakáshoz van kültéri parkoló
Kilátás: -
Egyéb extrák:  
Hirdető adatai
Hirdető neve: otpip.hu - Eger Törvényház utca 4 - OTP Ingatlanpont Iroda
Kapcsolattartó: Utasi Attila Csaba
Hirdető telefonszáma: +36-70-371-0172
Honlap: -
 
Üzenetet küldhet a hirdetőnek, árajánlatot tehet az ingatlanra:
Az Ön neve:
Az Ön e-mail címe:
Üzenet: