Ingatlan Televízió
Ingatlan Televízió
további hirdetések
adatlap bezárása

Mezőkovácsháza 
 

Hivatkozási szám: 5831591
Ingatlan adatai
Irányár: 4 500 000 Ft
Típus: ház
Kategória: eladó
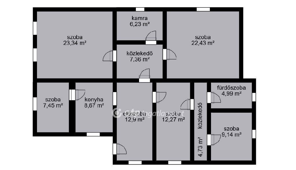
Alapterület: 119 m2
Fűtés: gáz (konvektor)
Állapota: felújítást igényel
Szobák száma: 3+2
Építés éve: 1930
Szintek száma: 1
Részletes leírás
Csak az OTP Ingatlanpont kínálatában eladó egy újragondolásra megérett családi ház!

A nagyméretű telek aszfaltozott utcában található, ami a város széle, de mégis viszonylag közel van a központhoz. A ház teljes felújítást igényel kívül-belül, a tetőt csak át kell vizsgálni. Van gáz, ipari áram is bekötve, mely önmagában komoly érték. A tető rendben,

Az ingatlan a fix 3%-os Otthon Start Hitelprogram, CSOK Plusz feltételeinek megfelelő akár 3 gyermek esetében is.

Az OTP Bankcsoport teljes körű ügyintézéssel áll az eladók és a vevők rendelkezésére! A kínálatunkból választott ingatlan finanszírozásához kedvezményes hitel konstrukciókat kínálunk. Legújabb szolgáltatásként ajánlom minden kedves ügyfelem részére az OTP Bank által közvetített Babaváró, CSOK PLUSZ, vagy egyéb kölcsönök intézését. Az adásvételi szerződés megkötéséhez igény szerint megbízható ügyvédi közreműködést biztosítunk, és segítséget nyújtunk az adásvételhez kapcsolódó ügyek intézéséhez. Akár hétvégén is hívható vagyok! Keressen bizalommal!

Referencia szám: M311803-ITV
További adatok
Telekterület: 1 430 m2
Kert mérete: -
Erkély mérete: -
Felszereltség: -
Parkolás: lakáshoz van kültéri parkoló
Kilátás: -
Egyéb extrák:  
Hirdető adatai
Hirdető neve: otpip.hu - Csongrád Fő utca 54 - OTP Ingatlanpont Iroda
Kapcsolattartó: Pócsik Attila
Hirdető telefonszáma: +36204054500
Honlap: -
 
Üzenetet küldhet a hirdetőnek, árajánlatot tehet az ingatlanra:
Az Ön neve:
Az Ön e-mail címe:
Üzenet: