Ingatlan Televízió
Ingatlan Televízió
további hirdetések
adatlap bezárása

Budapest, VII.kerület 
 

Hivatkozási szám: 5830615
Ingatlan adatai
Irányár: 153 031 500 Ft
Típus: lakás (újépítésű)
Kategória: eladó
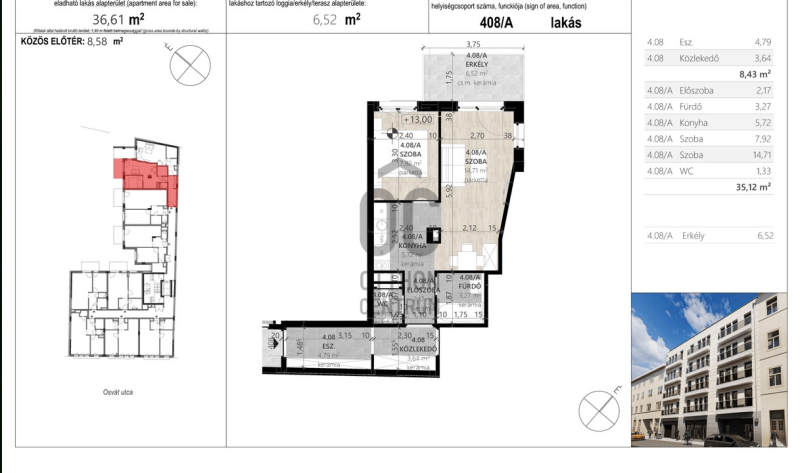
Alapterület: 64 m2
Fűtés: -
Állapota: új
Szobák száma: 3
Építés éve: 2026
Szintek száma: -
Részletes leírás
Befektetőknek! Az ingatlan az 5. emeleten található. Kertre néző. Egy helyrajzi számon két különálló ingatlan került kialakításra.
Egy garzon és egy nappali + 1 hálós lakás. 70.242.900 Ft, 82.788.600 Ft. Ügyvédi megosztással külön is megvásárolhatók.
Projekt bemutatása

A belváros egyik legjobb részén a Blaha Lujza tér szomszédságában nappali 1 hálós és nappali + 2 hálós, modern, energiatakarékos lakások.
A szomszéd épület alacsony, így a 4. és 5. emeleti belső, kertre néző lakások ablakaiból és teraszáról a kilátást semmi nem gátolja. A 6. emeletről városi panoráma + oldalt a Rózsák terén található templom tornyai láthatók.
A 7. emeleti lakásból pazar városi panoráma és részben a budai hegyek látványa tárul elénk.
A földszinti lakásokhoz a teraszon kívül saját kert tartozik.
Beállók opcionálisan vásárolhatók az épület melletti parkolóházban. A két épület a pinceszinten összenyitásra kerül.
Nagy méretű beálló, 5,5x3 méter: 15 millió Ft
Normál beálló, 2,5x 5 méter: 13 millió Ft
Csökkentett méretű beálló, 11 millió Ft
Tárolók 600e Ft/m2-es áron, 5 m2-13m2 méretben
Műszaki átadás: 2026.01.31.
Szakaszos fizetési ütemezés. 30% -30% - 30% - 10%.
A beruházó 25 éve markáns szereplője az ingatlanpiacnak. Magas minőségű kivitelezés, több szakmai díjjal elismert fejlesztő.

Fűtés-hűtés rendszer
A hűtés fűtést és melegvíz ellátást hőszivattyús rendszer biztosítja.
A Fűtés hűtés rendszer csövei a mennyezetben és padlóban futnak.
A hűtés és fűtés szabályozása lakásonként a tulajdonos által (akár telefonról is) vezérelhető a lakó helyiségekben elhelyezett termosztáttal történik.
A felhasznált hőenergia aránya költségosztással az átfolyt vízmennyiség alapján mérhető.
További adatok
Telekterület: -
Kert mérete: -
Erkély mérete: 14 m2
Felszereltség: -
Parkolás: -
Kilátás: kertre néző
Egyéb extrák:  
Hirdető adatai
Hirdető neve: Otthon Centrum
Kapcsolattartó: Alaitner Gábor
Hirdető telefonszáma: +36 70 461 9291
Honlap: -
 
Üzenetet küldhet a hirdetőnek, árajánlatot tehet az ingatlanra:
Az Ön neve:
Az Ön e-mail címe:
Üzenet: